Plan No.307732
Country-Style Rancher
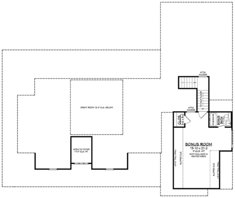
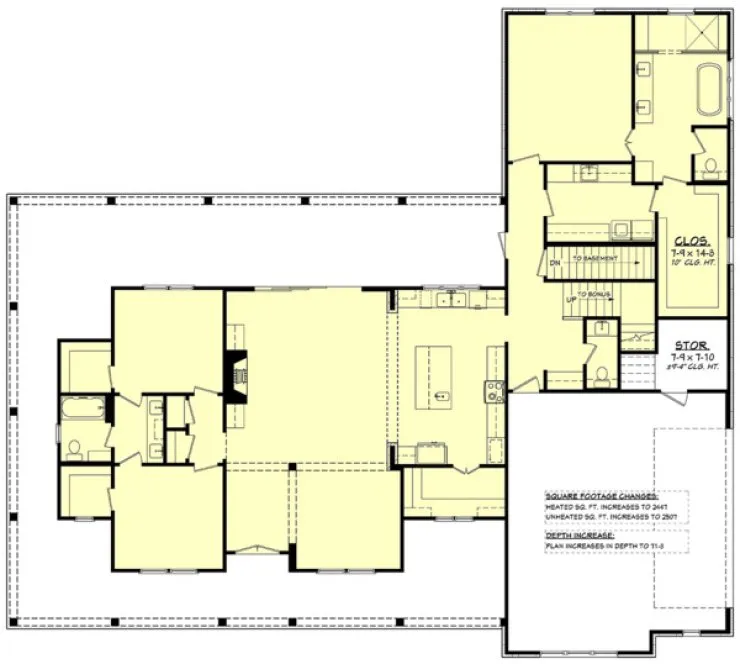
This country-style modern farmhouse is perfect for rural living with its tall gable roofs and wrap around porch. This home includes a bonus room over the garage and lots of extra storage space. All bedrooms are spacious and have walk-in closets, and the Master Suite has a large walk-in closet that can be accessed through the laundry room. Also part of the main suite is a bathroom that has a free-standing tub and glass shower. The great room with adjacent dining room is open to the large kitchen which has an eating bar and walk-in pantry. Total Living Area may increase with Basement Foundation option.
Specifications
Total 2377 sq ft
- Main: 2377
- Second: 0
- Third: 0
- Loft/Bonus: 509
- Basement: 0
- Garage: 709
Rooms
- Beds: 3
- Baths: 2
- 1/2 Bath: 1
- 3/4 Bath: 0
Ceiling Height
- Main: 10'0-12'0
- Second:
- Third:
- Loft/Bonus: 9'0
- Basement:
- Garage:
Details
- Exterior Walls: 2x4
- Garage Type: 2 Car Garage
- Width: 80'6
- Depth: 67'8
Roof
- Max Ridge Height: 28'0
- Comments: (Main Floor to Peak)
- Primary Pitch: 10/12
- Secondary Pitch: 0/12
Add to Cart
Pricing
– westhomeplanners.com
– westhomeplanners.com
– westhomeplanners.com
Opt. Basement Stairs – westhomeplanners.com
Front & Right – westhomeplanners.com
Rear & Left – westhomeplanners.com
– westhomeplanners.com
– westhomeplanners.com
– westhomeplanners.com
FRONT Elevation – westhomeplanners.com
[Back to Search Results]

833–493–0942








