Plan No.308961
Modern Farmhouse with Split Floor Plan
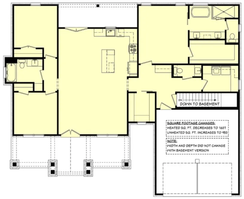
This split floor plan Modern Farmhouse offers three bedrooms, two and a half baths along with an open design and large walk-in pantry. The kitchen features a large island and is open to the rest of the home for ease of entertaining. The Master Suite has a large bath along with an oversized walk-in closet. The garage or family entry has a drop zone with lockers for organization and a powder room that is conveniently located. The utility room offers cabinets and much needed counterspace for all your laundry needs. The guest bedrooms are adequately sized and offer a bath along with a linen closet for storage. Total Living Area may increase with Basement Foundation option.
Specifications
Total 1698 sq ft
- Main: 1698
- Second: 0
- Third: 0
- Loft/Bonus: 0
- Basement: 0
- Garage: 494
Rooms
- Beds: 3
- Baths: 2
- 1/2 Bath: 1
- 3/4 Bath: 0
Ceiling Height
- Main: 9'0-10'0
- Second:
- Third:
- Loft/Bonus:
- Basement:
- Garage:
Details
- Exterior Walls: 2x4
- Garage Type: 2 Car Garage
- Width: 61'6
- Depth: 49'10
Roof
- Max Ridge Height: 25'0
- Comments: (Main Floor to Peak)
- Primary Pitch: 10/12
- Secondary Pitch: 0/12
Add to Cart
Pricing
– westhomeplanners.com
– westhomeplanners.com
Opt. Basement Stairs – westhomeplanners.com
– westhomeplanners.com
[Back to Search Results]

833–493–0942


