Plan No.491381
Specifications
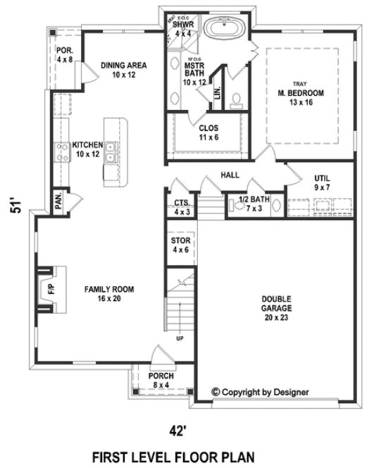
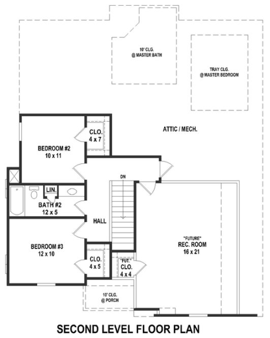
Total 1831 sq ft
- Main: 1352
- Second: 480
- Third: 0
- Loft/Bonus: 377
- Basement: 0
- Garage: 512
Rooms
- Beds: 3
- Baths: 2
- 1/2 Bath: 1
- 3/4 Bath: 0
Ceiling Height
- Main: 9'0
- Second: 8'0
- Third:
- Loft/Bonus:
- Basement:
- Garage: 9'4
Details
- Exterior Walls: 2x4
- Garage Type: 2 Car Garage
- Width: 41'2
- Depth: 50'0
Roof
- Max Ridge Height: 28'11
- Comments: (Main Floor to Peak)
- Primary Pitch: 12.14/12
- Secondary Pitch: 0/12
Add to Cart
Pricing
– westhomeplanners.com
– westhomeplanners.com
– westhomeplanners.com
– westhomeplanners.com
– westhomeplanners.com
– westhomeplanners.com
[Back to Search Results]

833–493–0942




