Plan No.305912
Gorgeous Rustic Home Design With Large Front & Rear Porches
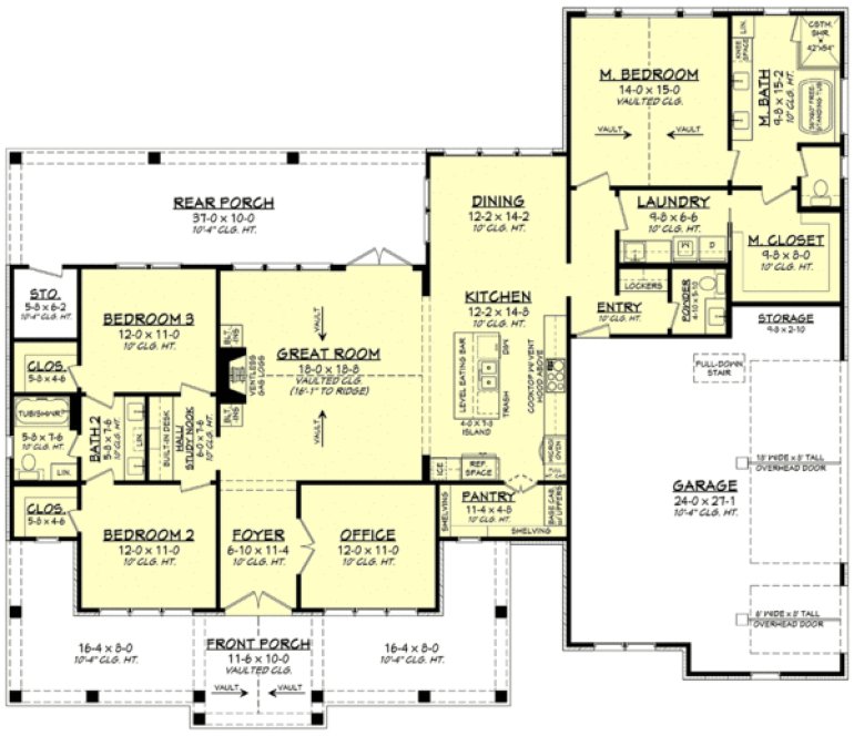
This gorgeous rustic home design is well-suited to a mountain setting or would complement an urban neighborhood at the outskirts of town. Designed for outdoor living with a roomy front porch and a large rear porch with plenty of windows all around, the outdoors flood in and fill the rooms with natural light. The vaulted great room is open to the kitchen which has a beautiful eat-in island and walk-in pantry. The main bedroom is also vaulted and has an ensuite bath with double vanities and a separate tub and glass enclosed shower.
Specifications
Total 2195 sq ft
- Main: 2195
- Second: 0
- Third: 0
- Loft/Bonus: 0
- Basement: 0
- Garage: 735
Rooms
- Beds: 3
- Baths: 2
- 1/2 Bath: 1
- 3/4 Bath: 0
Ceiling Height
- Main: 10'0-16'1
- Second:
- Third:
- Loft/Bonus:
- Basement:
- Garage:
Details
- Exterior Walls: 2x4
- Garage Type: 2 Car Garage
- Width: 74'2
- Depth: 63'4
Roof
- Max Ridge Height: 26'0
- Comments: (Main Floor to Peak)
- Primary Pitch: 8/12
- Secondary Pitch: 0/12
Add to Cart
Pricing
Full Rendering – westhomeplanners.com
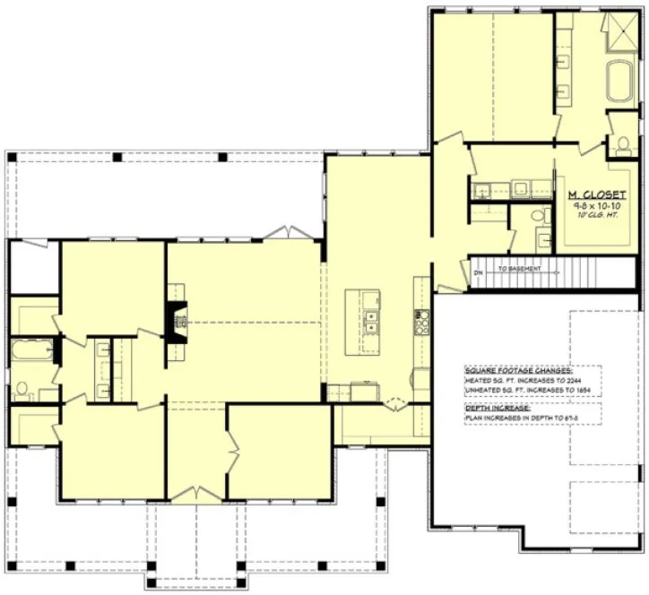
MAIN Plan – westhomeplanners.com
Opt. Basement Stairs – westhomeplanners.com
Front – westhomeplanners.com
Rear – westhomeplanners.com
REAR Elevation – westhomeplanners.com
LEFT Elevation – westhomeplanners.com
RIGHT Elevation – westhomeplanners.com
FRONT Elevation – westhomeplanners.com
[Back to Search Results]

833–493–0942







