Plan No.310081
Ranch Home Plan with Inviting Front & Rear Verandahs
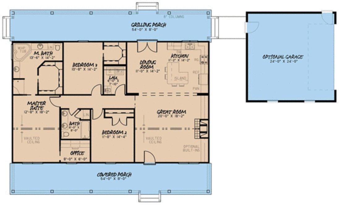
Enter this spacious country style home and into the welcoming great room with a vaulted ceiling and cozy fireplace. Open planning leads into the kitchen with its large island with snack bar and adjacent dining room. A convenient pocket office is connected to the master suite as well as a larger master bath and walk-in closet. Bedrooms 2 and 3 have plenty of space for the kids and large closets to store all their things. To the rear of the home you'll find the great covered grilling porch perfect for spending weekends outside in the warm weather!
Specifications
Total 1800 sq ft
- Main: 1800
- Second: 0
- Third: 0
- Loft/Bonus: 0
- Basement: 0
- Garage: 506
Rooms
- Beds: 3
- Baths: 2
- 1/2 Bath: 0
- 3/4 Bath: 0
Ceiling Height
- Main: 8'0+
- Second:
- Third:
- Loft/Bonus:
- Basement:
- Garage:
Details
- Exterior Walls: 2x4
- Garage Type: 2 Car Garage
- Width: 54'0
- Depth: 49'4
Roof
- Max Ridge Height: 18'0
- Comments: (Main Floor to Peak)
- Primary Pitch: 7/12
- Secondary Pitch: 0/12
Add to Cart
Pricing
– westhomeplanners.com
– westhomeplanners.com
Front & Left – westhomeplanners.com
Rear & Right – westhomeplanners.com
Rear & Left – westhomeplanners.com
– westhomeplanners.com
– westhomeplanners.com
FRONT Elevation – westhomeplanners.com
[Back to Search Results]

833–493–0942






