Plan No.435921
Charming Barndominium with Large Garage & Shop
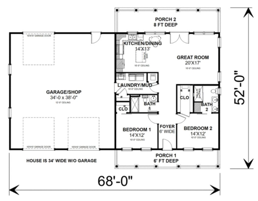
This charming barndominium features an expansive open floor layout. The kitchen is laid out in an L-shape and features an island fitted with a snack bar and plenty of storage. French doors lead out from the Great Room to the 8’ deep rear porch. The Master Suite or Bedroom 2 features a private bathroom and a large walk-in closet. There is a large laundry room with an extra storage closet. Finishing off this well-appointed home, there is a larger-than-average garage boasting two garage doors at the front and one at the back.
Specifications
Total 1295 sq ft
- Main: 1295
- Second: 0
- Third: 0
- Loft/Bonus: 0
- Basement: 0
- Garage: 0
Rooms
- Beds: 2
- Baths: 2
- 1/2 Bath: 0
- 3/4 Bath: 0
Ceiling Height
- Main: 10'0
- Second:
- Third:
- Loft/Bonus:
- Basement:
- Garage:
Details
- Exterior Walls: 2x6
- Garage Type: 3 Car Garage
- Width: 68'0
- Depth: 52'0
Roof
- Max Ridge Height: 25'0
- Comments: (Main Floor to Peak)
- Primary Pitch: 10/12
- Secondary Pitch: 0/12
Add to Cart
Pricing
– westhomeplanners.com
– westhomeplanners.com
Right & Rear – westhomeplanners.com
Front - Red Siding – westhomeplanners.com
Front - Beige Siding – westhomeplanners.com
Rear – westhomeplanners.com
Front - Brown Siding – westhomeplanners.com
Kitchen – westhomeplanners.com
[Back to Search Results]

833–493–0942






