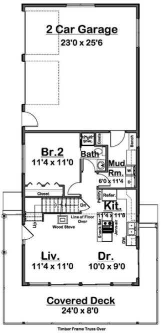
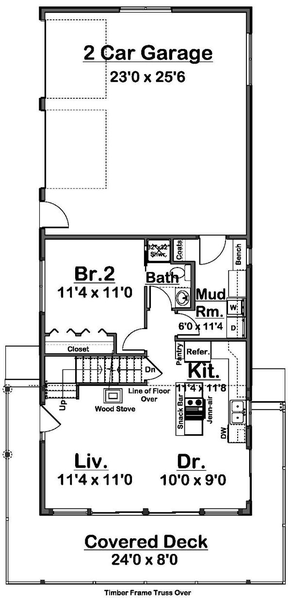
Plan No.203045
Specifications
Total 1152 sq ft
- Main: 768
- Second: 384
- Third: 0
- Loft/Bonus: 0
- Basement: 774
- Garage: 624
Rooms
- Beds: 3
- Baths: 3
- 1/2 Bath: 0
- 3/4 Bath: 0
Ceiling Height
- Main: 8'0+
- Second: 8'0
- Third:
- Loft/Bonus:
- Basement: 8'0
- Garage:
Details
- Exterior Walls: 2x6
- Garage Type: 2 Car Garage
- Width: 32'0
- Depth: 66'0
Roof
- Max Ridge Height: 22'8
- Comments: (Main Floor to Peak)
- Primary Pitch: 12/12
- Secondary Pitch: 5/12
Add to Cart
Pricing
– westhomeplanners.com
– westhomeplanners.com
– westhomeplanners.com
– westhomeplanners.com
Dining – westhomeplanners.com
Great Room – westhomeplanners.com
Kitchen – westhomeplanners.com
Rec Room – westhomeplanners.com
Basement Bedroom – westhomeplanners.com
– westhomeplanners.com
[Back to Search Results]

833–493–0942








