Plan No.702551
Car Collector's Dream
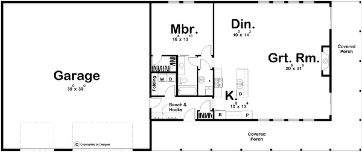
This is an amazing Barndominium style post frame house plan. The home's oversized 3-car garage makes a perfect place for any car collector or hobbyist. A large wrap-around covered porch greets guests into the home. The footprint of the home is simple to build with post frame construction. The kitchen, great room, and dining room are arranged in an open layout. The kitchen includes a pantry and a large island with a snack bar. The home's single bedroom shares a bathroom with the main level and features a walk-in closet.
Specifications
Total 1552 sq ft
- Main: 1552
- Second: 0
- Third: 0
- Loft/Bonus: 0
- Basement: 0
- Garage: 1584
Rooms
- Beds: 1
- Baths: 1
- 1/2 Bath: 0
- 3/4 Bath: 0
Ceiling Height
- Main: 10'0
- Second:
- Third:
- Loft/Bonus:
- Basement:
- Garage:
Details
- Exterior Walls: 2x6
- Garage Type: 3 Car Garage
- Width: 96'0
- Depth: 40'0
Roof
- Max Ridge Height: 21'0
- Comments: (Main Floor to Peak)
- Primary Pitch: 6/12
- Secondary Pitch: 0/12
Add to Cart
Pricing
– westhomeplanners.com
– westhomeplanners.com
Left & Front – westhomeplanners.com
Rear & Right – westhomeplanners.com
Front & Right – westhomeplanners.com
Sunset Rendering – westhomeplanners.com
Dining – westhomeplanners.com
Entry – westhomeplanners.com
Kitchen – westhomeplanners.com
Great Room – westhomeplanners.com
Grt Rm to Kitchen / Dr – westhomeplanners.com
Great Room – westhomeplanners.com
Master Bath – westhomeplanners.com
Master Bedroom – westhomeplanners.com
3D Floor Plan – westhomeplanners.com
[Back to Search Results]

833–493–0942













