Plan No.157423
Beautiful & Practical Design
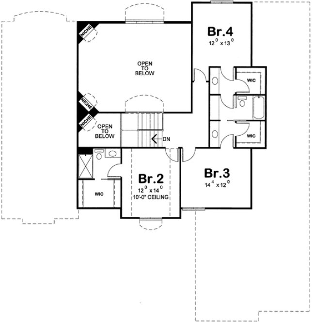
Why? Why a ¾ bathroom off the entry from the garage? Perhaps your flex room has a murphy (wall) bed and you have an overnight guest. Why the option of a door from the rear foyer into the pantry? To make even quicker work of unloading groceries. Why a 5’ x 5’ walk-in shower and 6’ soaking tub in the owner’s bath? Many people won’t take a tub bath because a standard 5’ tub feels too small, and the shower is big enough for two people, plus there’s no shower door to clean. Why the design of the shared upstairs bathroom? Privacy and eliminating schedule conflicts over getting out the door on time. That’s just a few of this design's back-stories behind its beautiful and practical design!
Specifications
Total 3247 sq ft
- Main: 2286
- Second: 961
- Third: 0
- Loft/Bonus: 0
- Basement: 0
- Garage: 826
Rooms
- Beds: 4
- Baths: 2
- 1/2 Bath: 2
- 3/4 Bath: 0
Ceiling Height
- Main: 9'0-14'0
- Second: 8'0
- Third:
- Loft/Bonus:
- Basement:
- Garage:
Details
- Exterior Walls: 2x4
- Garage Type: 3 Car Garage
- Width: 64'0
- Depth: 74'0
Roof
- Max Ridge Height: 26'4
- Comments: (Main Floor to Peak)
- Primary Pitch: 8/12
- Secondary Pitch: 0/12
Add to Cart
Pricing
– westhomeplanners.com
– westhomeplanners.com
– westhomeplanners.com
Opt. Basement Stairs – westhomeplanners.com
Rear Rendering – westhomeplanners.com
– westhomeplanners.com
– westhomeplanners.com
– westhomeplanners.com
[Back to Search Results]

833–493–0942






