Plan No.201173
Loaded With Possibilities
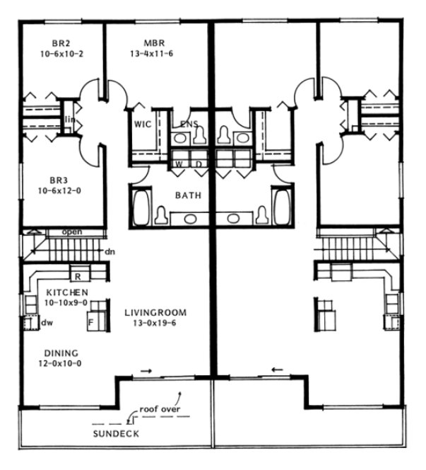
A nicely proportioned foyer welcomes you as you enter the main door...a handy closet is closeby and a lovely open staicase will take you to the main floor. Here you will find three good-sized bedrooms, the master suite even features a two-piece ensuite and walk-in closet. The big family bath does double duty as a laundry room. A spacious living area completes the picture and in nice weather the large partially covered deck will be most pleasant to enjoy. The per unit Main Floor area is 1265.3 sq. ft., the Basement area is 1079.45 sq. ft. of which 97 sq. ft. is finished (Foyer). The total area per unit is 2344.75 sq. ft. Each Carport is 296 sq. ft.
Specifications
Total 4690 sq ft
- Main: 2531
- Second: 0
- Third: 0
- Loft/Bonus: 0
- Basement: 2159
- Garage: 296
Rooms
- Beds: 3
- Baths: 1
- 1/2 Bath: 1
- 3/4 Bath: 0
Ceiling Height
- Main: 8'0
- Second:
- Third:
- Loft/Bonus:
- Basement: 8'0
- Garage: 8'4
Details
- Exterior Walls: 2x6
- Garage Type: singleCarport
- Width: 50'0
- Depth: 57'0
Roof
- Max Ridge Height: 28'0
- Comments: (Main Floor to Peak)
- Primary Pitch: 5/12
- Secondary Pitch: 0/12
Add to Cart
Pricing
– westhomeplanners.com
– westhomeplanners.com
– westhomeplanners.com
– westhomeplanners.com
– westhomeplanners.com
[Back to Search Results]

833–493–0942



