Plan No.158442
Classic Meets Modern
Classic meets modern in the elevation execution of this new farmhouse design, and the result is captivating. Equally attractive, time together is enhanced in the large family room, especially because it is not a thoroughfare for getting to another room. Flanked by the deep tandem third garage stall, the rear patio provides a discrete outdoor space where you can enjoy privacy or kids can play safely. Secondary bedroom and bathroom accommodations are beautifully packaged on the second floor, and the owner’s suite’s double walk-in closets plus spa-inspired bathroom will have you counting your blessings!
Specifications
Total 2448 sq ft
- Main: 1112
- Second: 1336
- Third: 0
- Loft/Bonus: 0
- Basement: 0
- Garage: 717
Rooms
- Beds: 4
- Baths: 2
- 1/2 Bath: 1
- 3/4 Bath: 1
Ceiling Height
- Main: 9'0
- Second: 8'0
- Third:
- Loft/Bonus:
- Basement: 9'0
- Garage:
Details
- Exterior Walls: 2x4
- Garage Type: 3 Car Garage
- Width: 45'0
- Depth: 59'8
Roof
- Max Ridge Height: 30'4
- Comments: (Main Floor to Peak)
- Primary Pitch: 8/12
- Secondary Pitch: 10/12
Add to Cart
Pricing
Full Rendering – westhomeplanners.com
MAIN Plan – westhomeplanners.com
SECOND Plan – westhomeplanners.com
REAR Elevation – westhomeplanners.com
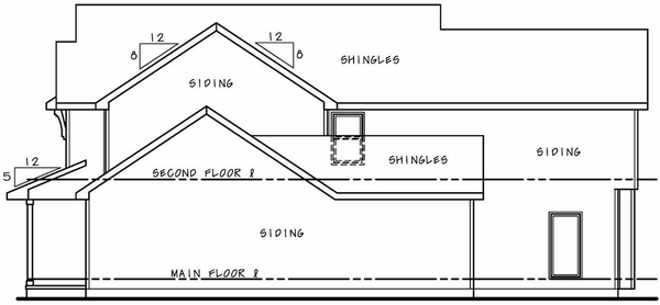
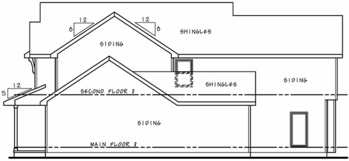
LEFT Elevation – westhomeplanners.com
RIGHT Elevation – westhomeplanners.com
[Back to Search Results]

833–493–0942




