Plan No.140263
Private Master Retreat Above Garage
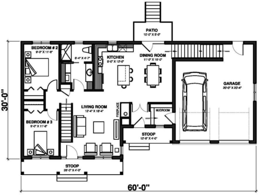
The main floor of this efficient rancher is a mere 1073 sq. ft., but there are no amenities missing here. In fact, this attractive home has a luxurious little secret – a fully private master suite in bonus space over the garage! Sloping ceilings add a special style to this secluded master loft complete with master bathroom and walk-in closet. This design features a semi-open concept with the living room oriented to the front of the house but within easy reach of the kitchen. A combination of shower room and laundry room ensures quick recycling of laundry at source. This plan includes a full undeveloped basement or change it to a crawlspace for an additional fee and gain space in the living room. A double garage is the final feature, but one that is sure to be appreciated.
Specifications
Total 1398 sq ft
- Main: 1073
- Second: 325
- Third: 0
- Loft/Bonus: 0
- Basement: 1073
- Garage: 540
Rooms
- Beds: 3
- Baths: 2
- 1/2 Bath: 0
- 3/4 Bath: 0
Ceiling Height
- Main:
- Second:
- Third:
- Loft/Bonus:
- Basement:
- Garage:
Details
- Exterior Walls: 2x6
- Garage Type: 2 Car Garage
- Width: 60'0
- Depth: 30'0
Roof
- Max Ridge Height: 21'10
- Comments: (Main Floor to Peak)
- Primary Pitch: 0/12
- Secondary Pitch: 0/12

833–493–0942


