Plan No.826493
Great Outdoor Living Space
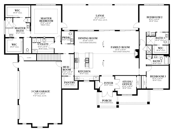
Specifications
Total 3946 sq ft
- Main: 3339
- Second: 0
- Third: 0
- Loft/Bonus: 607
- Basement: 0
- Garage: 980
Rooms
- Beds: 3
- Baths: 3
- 1/2 Bath: 1
- 3/4 Bath: 0
Ceiling Height
- Main: 10'0+
- Second:
- Third:
- Loft/Bonus: 8'0
- Basement:
- Garage:
Details
- Exterior Walls: Block-MF/2x6-SF
- Garage Type: 3 Car Garage
- Width: 94'0
- Depth: 70'4
Roof
- Max Ridge Height: 21'5
- Comments: (Main Floor to Peak)
- Primary Pitch: 6/12
- Secondary Pitch: 0/12
Add to Cart
Pricing
Full Rendering – westhomeplanners.com
MAIN Plan – westhomeplanners.com
ATTIC Plan – westhomeplanners.com
[Back to Search Results]

833–493–0942

