Plan No.309691
Country Farmhouse Plan With Open Living Space
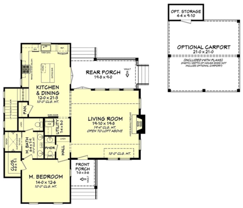
You will love this home plan because it has open living space inside, a wonderful covered grilling porch at the rear and a luxurious master suite. The master suite features his and her's vanities, a private toilet room and a huge double shower. The great room and kitchen with casual dining space share an open floor plan, so traffic flows freely making family and entertaining times a breeze. A fireplace and a dormer admitting lots of natural light, andorns the living space, and the cathedral ceiling is open to the second floor loft. WITH OPTIONAL CARPORT, the dimensions will be: Width = 68'8, Depth = 65'2.
Specifications
Total 1969 sq ft
- Main: 1247
- Second: 722
- Third: 0
- Loft/Bonus: 0
- Basement: 0
- Garage: 0
Rooms
- Beds: 3
- Baths: 2
- 1/2 Bath: 1
- 3/4 Bath: 0
Ceiling Height
- Main: 9'0
- Second: 8'0
- Third:
- Loft/Bonus:
- Basement:
- Garage:
Details
- Exterior Walls: 2x4
- Garage Type: doubleCarport
- Width: 41'4
- Depth: 46'10
Roof
- Max Ridge Height: 24'0
- Comments: (Main Floor to Peak)
- Primary Pitch: 12/12
- Secondary Pitch: 3/12
Add to Cart
Pricing
– westhomeplanners.com
– westhomeplanners.com
– westhomeplanners.com
– westhomeplanners.com
Front Photo – westhomeplanners.com
Bath 2 – westhomeplanners.com
Kitchen Island – westhomeplanners.com
Kitchen – westhomeplanners.com
Living Rm to Loft – westhomeplanners.com
Kitchen – westhomeplanners.com
Livingroom – westhomeplanners.com
Master Bedroom – westhomeplanners.com
Master Bath – westhomeplanners.com
Bedroom 2 – westhomeplanners.com
Bedroom 3 – westhomeplanners.com
Loft – westhomeplanners.com
Master Bath – westhomeplanners.com
– westhomeplanners.com
[Back to Search Results]

833–493–0942
















