Plan No.904741
Generous Covered Rear Porch
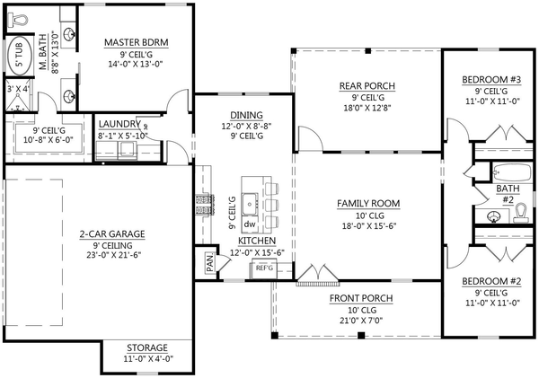
Vertical siding brings your gaze upward to the gabled peaks on this one-level, modern farmhouse plan, complete with a 7'-deep front porch. Double doors welcome you inside to be greeted by a family room that opens to the eat-in kitchen, while a generous rear porch is ideal for grilling and dining outdoors. Three seats are available at the kitchen island for conversation, and plenty of counter space allows for a large range. The master suite is tucked behind the 2-car garage for the utmost privacy and features a 5-fixture bath and a walk-in closet. The laundry room is conveniently located next door. Bedrooms 2 and 3 occupy the right side of the home, separated by a full bath that they share.
Specifications
Total 1474 sq ft
- Main: 1474
- Second: 0
- Third: 0
- Loft/Bonus: 0
- Basement: 0
- Garage: 559
Rooms
- Beds: 3
- Baths: 2
- 1/2 Bath: 0
- 3/4 Bath: 0
Ceiling Height
- Main: 9'0-10'0
- Second:
- Third:
- Loft/Bonus:
- Basement:
- Garage:
Details
- Exterior Walls: 2x4
- Garage Type: 2 Car Garage
- Width: 65'8
- Depth: 46'0
Roof
- Max Ridge Height: 22'0
- Comments: (Main Floor to Peak)
- Primary Pitch: 9/12
- Secondary Pitch: 0/12
Add to Cart
Pricing
Full Rendering – westhomeplanners.com
MAIN Plan – westhomeplanners.com
Dusk Rendering – westhomeplanners.com
REAR Elevation – westhomeplanners.com
[Back to Search Results]

833–493–0942


