Plan No.904152
Rocking Chair Verandah
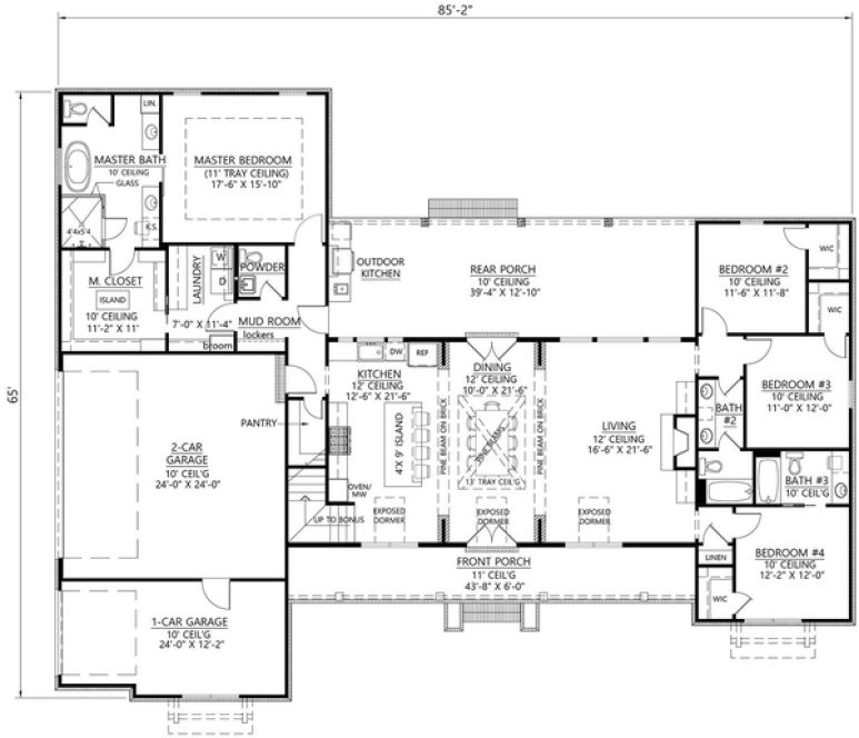
Three shed dormers, all functional and letting light into the home, grace the front of this modern farmhouse plan. The front porch, at 6'-deep and 43'-8"-wide, gives you room for lots of rocking chairs. French doors open to the reveal beams running front-to-back and a dining room with a 13'-tray ceiling with beams crossing in the middle. The kitchen has a large island with great work space and room for four chairs. From behind the island you can see all the way across the home to the living room fireplace. French doors open to the rear porch. It is 12'10" deep and has an outdoor kitchen and room for furniture. Make this your outdoor living room if building in the right climate. The master suite occupies the entire left side of the home. The tray ceiling gives it a roomy feeling. You'll like having a large walk-in closet. The fact that it has access to the laundry room is something you'll like as well. Three bedrooms and two baths - one a Jack and Jill - are located across the home. Each bedroom has a walk-in closet. Please note, the Bonus Room area is not included in the total square footage.
Specifications
Total 2514 sq ft
- Main: 2514
- Second: 0
- Third: 0
- Loft/Bonus: 555
- Basement: 0
- Garage: 900
Rooms
- Beds: 4
- Baths: 4
- 1/2 Bath: 1
- 3/4 Bath: 0
Ceiling Height
- Main: 10'0-12'0
- Second:
- Third:
- Loft/Bonus:
- Basement:
- Garage:
Details
- Exterior Walls: 2x4
- Garage Type: 3 Car Garage
- Width: 85'2
- Depth: 65'0
Roof
- Max Ridge Height: 27'5
- Comments: (Main Floor to Peak)
- Primary Pitch: 10/12
- Secondary Pitch: 14/12

833–493–0942






