Plan No.741481
Master Sitting Room
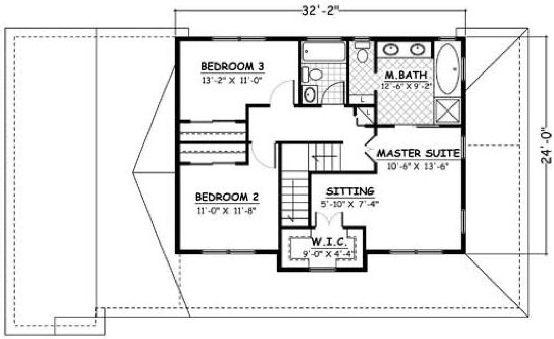
A wrap-around porch, multiple gables, and a circle-topped window give this farmhouse style home true curb appeal. The wrap-around covered porch will become a favorite place for the family to gather during the day or evenings to watch outdoor activities. Just add a swing or rocker to make it complete. A large kitchen, with a snack bar that can be used for informal dining as well as afterschool snacks. It also features easy access to the utility room and the formal dining room. This suite is complete with a luxurious bath that has a private toilet, dual vanities, and whirlpool tub. The room is made special with its own unique sitting area that is perfect for curling up with a good book.
Specifications
Total 1841 sq ft
- Main: 1050
- Second: 791
- Third: 0
- Loft/Bonus: 0
- Basement: 0
- Garage: 0
Rooms
- Beds: 4
- Baths: 3
- 1/2 Bath: 0
- 3/4 Bath: 0
Ceiling Height
- Main: 8'0
- Second: 8'0
- Third:
- Loft/Bonus:
- Basement:
- Garage:
Details
- Exterior Walls: 2x6
- Garage Type: 2 Car Garage
- Width: 56'0
- Depth: 32'0
Roof
- Max Ridge Height: 25'5
- Comments: (Main Floor to Peak)
- Primary Pitch: 6/12
- Secondary Pitch: 10/12
Add to Cart
Pricing
– westhomeplanners.com
– westhomeplanners.com
– westhomeplanners.com
[Back to Search Results]

833–493–0942

