Plan No.567041
Specifications
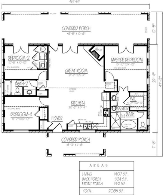
Total 1407 sq ft
- Main: 1407
- Second: 0
- Third: 0
- Loft/Bonus: 0
- Basement: 0
- Garage: 0
Rooms
- Beds: 3
- Baths: 2
- 1/2 Bath: 0
- 3/4 Bath: 0
Ceiling Height
- Main: 10'0
- Second:
- Third:
- Loft/Bonus:
- Basement:
- Garage:
Details
- Exterior Walls: 2x6
- Garage Type: none
- Width: 48'8
- Depth: 47'8
Roof
- Max Ridge Height: 24'11
- Comments: (Main Floor to Peak)
- Primary Pitch: 12/12
- Secondary Pitch: 16/12
Add to Cart
Pricing
– westhomeplanners.com
– westhomeplanners.com
– westhomeplanners.com
[Back to Search Results]

833–493–0942

