Plan No.580988
Compact Design with Full Sized Amenities
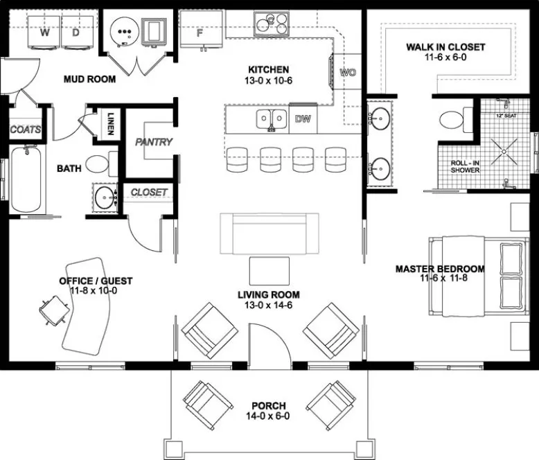
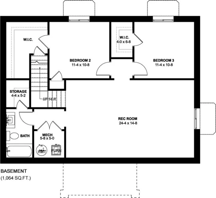
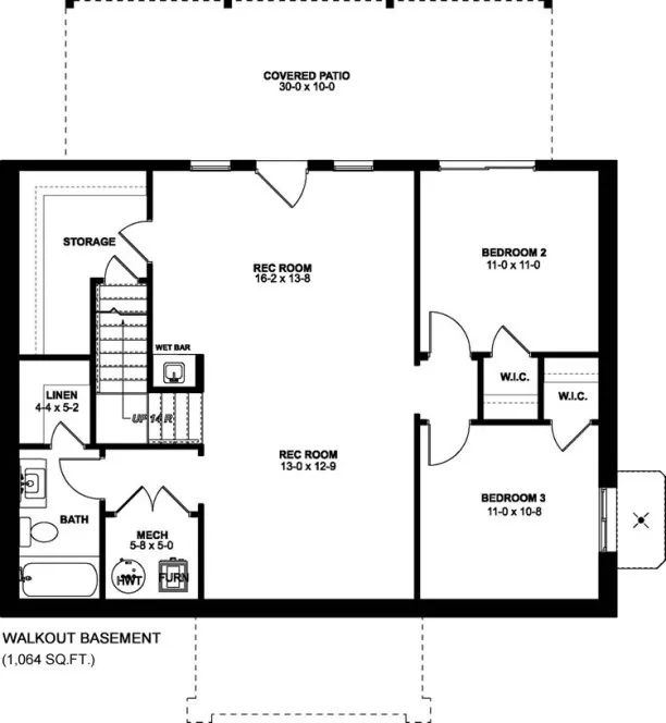
This compact plan features a fully equipped kitchen with a walk-in pantry and eating bar that comfortably seats up to four. The spacious floor plan accommodates full sized furniture and appliances. 9' ceilings and pocket doors throughout the home create a spacious and open feeling. The pocket doors leading into the master suite and guest room can either be closed for privacy or can provide a large 5' wide opening. The modern walk-in shower in the master suite provides both easy access and eliminates the maintenance required by glass doors. Measuring over 6' from end to end, the shower accommodates dual shower heads. The master suite also includes a dual vanity and a large walk-in closet. The alternate bath layout is included on the floorplans. This design also features a covered front porch, mudroom/laundry room and a full bath for guests. Also available with 2x4 exterior walls. BASEMENT VERSIONS SQUARE FOOTAGE INCREASES TO 1064 AND THE DEPTH INCREASES BY 2 FEET. WALKOUT BASEENT HAS A DECK OFF THE REAR WITH A SMALLER CLOSET TO ACCOMODATE THE DOOR TO THE DECK
Specifications
Total 988 sq ft
- Main: 988
- Second: 0
- Third: 0
- Loft/Bonus: 0
- Basement: 0
- Garage: 0
Rooms
- Beds: 2
- Baths: 2
- 1/2 Bath: 0
- 3/4 Bath: 0
Ceiling Height
- Main: 9'-0
- Second:
- Third:
- Loft/Bonus:
- Basement:
- Garage:
Details
- Exterior Walls: 2x6
- Garage Type: none
- Width: 38'-0
- Depth: 32'-0
Roof
- Max Ridge Height: 19'-5
- Comments: (From Grade)
- Primary Pitch: 8/12
- Secondary Pitch: 8/12

833–493–0942


























