Plan No.651680
Compact Cottage Design
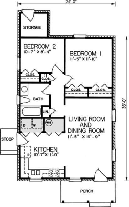
A compact two-bedroom cottage design of lovely simplicity, this plan is an economical choice for those seeking to turn their monthly rent into long-term equity. Accompanying the two bedrooms and the full bath are these features, a spacious kitchen and living/dining area with an open layout and there is a Washer/dryer closet with a storage closet at the kitchen, and an additional storage room accessible from the back yard. See our garage plan collection. If you order a house and garage plan at the same time, you will get 10% off your total order amount. Plans can be ordered with a trussed roof system upon request. Please add to order notes.
Specifications
Total 861 sq ft
- Main: 861
- Second: 0
- Third: 0
- Loft/Bonus: 0
- Basement: 0
- Garage: 0
Rooms
- Beds: 2
- Baths: 1
- 1/2 Bath: 0
- 3/4 Bath: 0
Ceiling Height
- Main: 8'0
- Second:
- Third:
- Loft/Bonus:
- Basement:
- Garage:
Details
- Exterior Walls: 2x4
- Garage Type: none
- Width: 24'0
- Depth: 36'0
Roof
- Max Ridge Height:
- Comments: ()
- Primary Pitch: 5/12
- Secondary Pitch: 0/12
Add to Cart
Pricing
Full Rendering – westhomeplanners.com
MAIN Plan – westhomeplanners.com
Elevations – westhomeplanners.com
[Back to Search Results]

833–493–0942

