Plan No.654811
Welcome Home
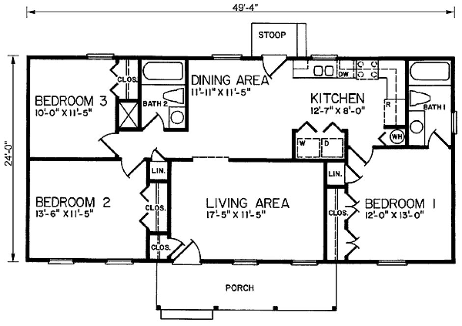
This classic transitional ranch presents an inviting front porch and an uncluttered form that says, "Welcome." The spacious living room just inside the front entry admits light through two windows and gracefully connects to the open dining/kitchen area through a cased opening. Other notable features include the dining/kitchen area with quick access to the back stoop, the Master bedroom has its own private bathroom, Bedrooms 2 and 3 share a second full bath, the Washer/dryer closet is handy to the kitchen. There is lots of storage space throughout, including coat and linen closets and ample bedroom closets. Excellent use of space and value-engineering makes this home another appealing choice in the "affordable home" category. See our garage plan collection. If you order a house and garage plan at the same time, you will get 10% off your total order amount. Plans can be ordered with a trussed roof system upon request. Please add to order notes.
Specifications
Total 1184 sq ft
- Main: 1184
- Second: 0
- Third: 0
- Loft/Bonus: 0
- Basement: 0
- Garage: 0
Rooms
- Beds: 3
- Baths: 2
- 1/2 Bath: 0
- 3/4 Bath: 0
Ceiling Height
- Main: 8'0
- Second:
- Third:
- Loft/Bonus:
- Basement:
- Garage:
Details
- Exterior Walls: 2x4
- Garage Type: none
- Width: 50'0
- Depth: 24'0
Roof
- Max Ridge Height:
- Comments: ()
- Primary Pitch: 0/12
- Secondary Pitch: 0/12

833–493–0942

