Plan No.650021
Charming, Compact Country-style Home
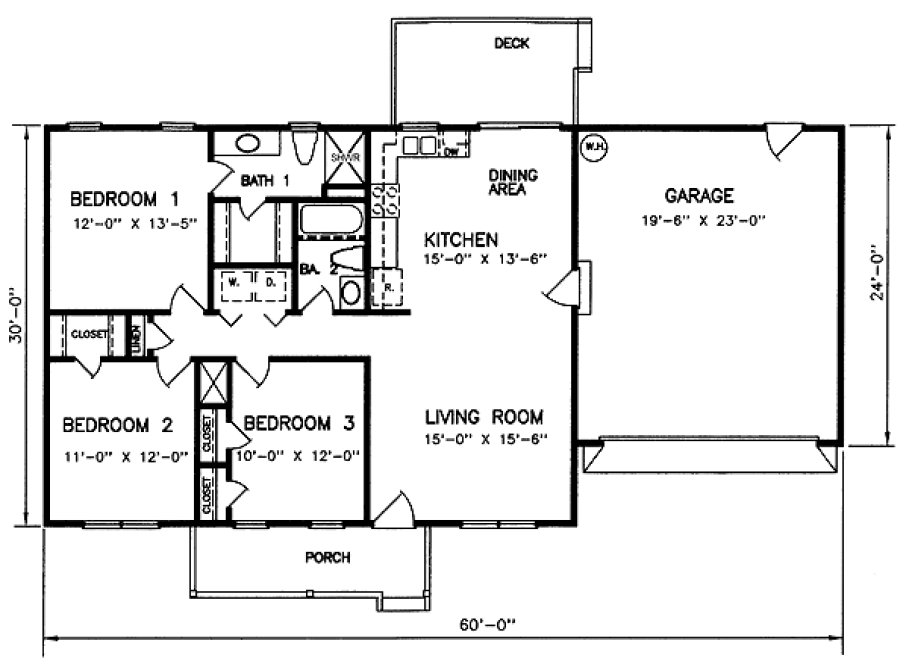
With 1,200 square feet of heated area plus a porch, a deck, and a two-car garage, this design offers a romantic yet practical cottage for the first-time homebuyer. Included in this modern floor plan are the following amenities, an open-style living room, kitchen & dining areas with a view of the deck and back yard, three bedrooms with generous closet space, including walk-ins in two of the bedrooms and an ensuite bath off the Master bedroom. There is also a centrally located washer/dryer closet and easy access from the garage to the kitchen. A compact footprint that maximizes interior space contributes added value to this charming home design—perfect for the budding, budget-minded family. Plans can be ordered with a trussed roof system upon request. Please add to order notes.
Specifications
Total 1200 sq ft
- Main: 1200
- Second: 0
- Third: 0
- Loft/Bonus: 0
- Basement: 0
- Garage: 480
Rooms
- Beds: 3
- Baths: 2
- 1/2 Bath: 0
- 3/4 Bath: 0
Ceiling Height
- Main: 8'0
- Second:
- Third:
- Loft/Bonus:
- Basement:
- Garage:
Details
- Exterior Walls: 2x4
- Garage Type: 2 Car Garage
- Width: 60'0
- Depth: 30'0
Roof
- Max Ridge Height:
- Comments: ()
- Primary Pitch: 7/12
- Secondary Pitch: 0/12

833–493–0942


