Plan No.904352
Split Floor Plan Farmhouse With Outdoor Kitchen
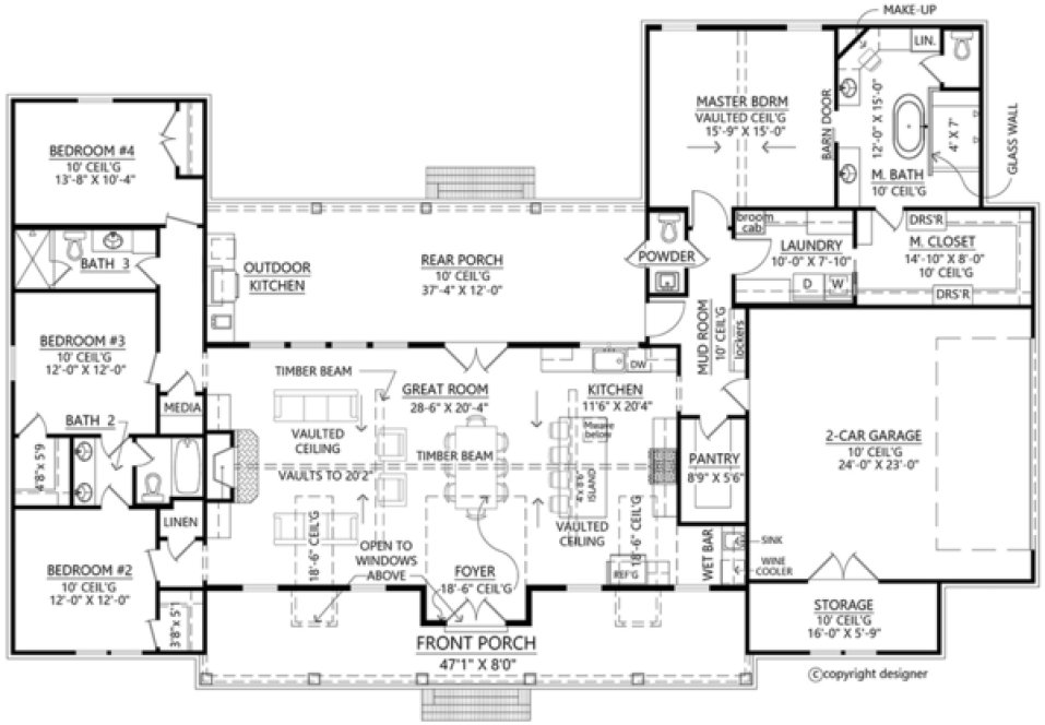
This home has 4 bedrooms and great outdoor living space. The covered rear porch measures 37'4 wide by 12' deep, and it includes an outdoor or summer kitchen. Walk through the double front doors into the foyer, and you can see all of the living space from right to left. Timber beams add detail to the vaulted ceiling. The attractive fireplace feature wall with built-ins adds visual impact to this room. There is easy access to the back porch through the double french doors. Notice that the half-bath is accessible from the porch as well. What is a split floor plan? This refers to the arrangement of the bedrooms. The children's bedrooms are located on the left side of the house, and the master suite is on the opposite side. Mom and Dad like this because they have privacy and a quiet retreat. The luxurious master suite includes a vaulted ceiling and a huge walk-in closet. The ensuite has a glass-walled custom shower, makeup counter, and a free-standing tub. The laundry room is large and includes counter space for folding clothes, storage cabinets, and a broom closet. The laundry room is conveniently connected to the master closet. In the mud room there is a drop zone with storage lockers, as nice feature which helps to keep things neat & tidy.
Specifications
Total 2534 sq ft
- Main: 2534
- Second: 0
- Third: 0
- Loft/Bonus: 0
- Basement: 0
- Garage: 685
Rooms
- Beds: 4
- Baths: 3
- 1/2 Bath: 1
- 3/4 Bath: 0
Ceiling Height
- Main: 10'0+
- Second:
- Third:
- Loft/Bonus:
- Basement:
- Garage:
Details
- Exterior Walls: 2x4
- Garage Type: 2 Car Garage
- Width: 87'2
- Depth: 56'2
Roof
- Max Ridge Height: 26'6
- Comments: (Main Floor to Peak)
- Primary Pitch: 10/12
- Secondary Pitch: 0/12

833–493–0942



















