Plan No.904422

Elegant Timeless Farmhouse

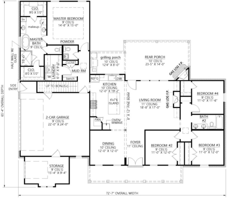
This timeless farmhouse offers elegant, yet practical, features; including a front and back porch, open floor plan, and a secluded master suite providing the utmost privacy for the homeowner. The gourmet kitchen features a corner pantry, large prep island, and a nearby formal dining room. For warmer months, enjoy the grilling porch just outside the kitchen. The restful master bedroom is quietly situated on the left side of the home, and boasts a spacious bathroom with dual closets, a separate tub and shower, and a makeup station. The three secondary bedrooms, located on the opposite side of the home, share a 4-fixture bath. An attached storage room on the 2-car garage offers plenty of space for lawn equipment, minimizing clutter in the garage. A bonus room option adds 439 sq. ft. of buildable space over the garage, see Plan #906612 for the Non Bonus Room option.

Specifications

Total 2244 sq ft

  • Main: 2244
  • Second: 0
  • Third: 0
  • Loft/Bonus: 439
  • Basement: 0
  • Garage: 737

Rooms

  • Beds: 4
  • Baths: 2
  • 1/2 Bath: 1
  • 3/4 Bath: 0

Ceiling Height

  • Main: 9'0-11'0
  • Second:
  • Third:
  • Loft/Bonus:
  • Basement:
  • Garage:

Details

  • Exterior Walls: 2x4
  • Garage Type: 2 Car Garage
  • Width: 72'7
  • Depth: 65'4

Roof

  • Max Ridge Height: 25'2
  • Comments: (Main Floor to Peak)
  • Primary Pitch: 10/12
  • Secondary Pitch: 0/12
Full Rendering – westhomeplanners.com
MAIN Plan – westhomeplanners.com
ATTIC Plan – westhomeplanners.com
Opt. Basement Stairs – westhomeplanners.com
LEFT Elevation – westhomeplanners.com
FRONT Elevation – westhomeplanners.com
[Back to Search Results]