Plan No.154772
Meet the Future
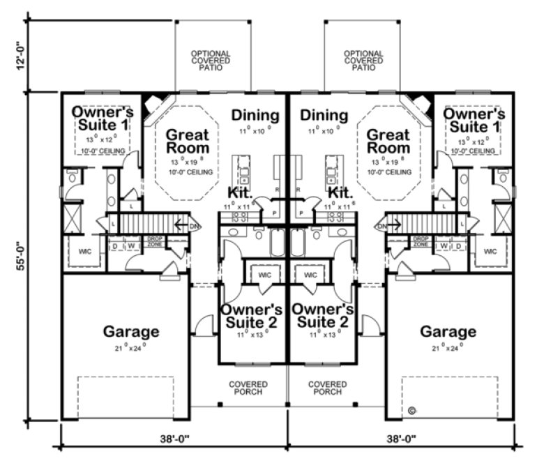
Meet the future of duplex living! Based on one of the most popular single family designs, this gorgeous home delivers so much in its modest size. No tiny garage here. No tiny bedroom closets. No tiny bathrooms. But the plan does have a rear foyer entry from the garage with drop zone and closet to keep clutter out of the kitchen, walk-in kitchen pantry, two linen closets, and a wonderfully open entertaining area. And for connecting with nature – a covered front porch and rear patio! The total living area of each unit is 1387 sq. ft., the combined living area of the building is 2774 sq. ft. Each unit features a 2 Car Garage of 527 sq. ft., 2 Bedrooms, 1 Bath and 1 Half Bath. A PDF Study Set is a complete set of plans stamped NOT FOR CONSTRUCTION. Not considered a license-to-build. Great for bidding purposes. Customer can upgrade within 90 days.
Specifications
Total 2774 sq ft
- Main: 1387
- Second: 0
- Third: 0
- Loft/Bonus: 0
- Basement: 0
- Garage: 527
Rooms
- Beds: 2
- Baths: 1
- 1/2 Bath: 1
- 3/4 Bath: 0
Ceiling Height
- Main: 9'0
- Second:
- Third:
- Loft/Bonus:
- Basement:
- Garage:
Details
- Exterior Walls: 2x4
- Garage Type: 2 Car Garage
- Width: 76'0
- Depth: 55'0
Roof
- Max Ridge Height: 24'2
- Comments: (Main Floor to Peak)
- Primary Pitch: 4/12
- Secondary Pitch: 0/12

833–493–0942




