Plan No.308583
Stunning and Spacious Farmhouse Plan with Game Room
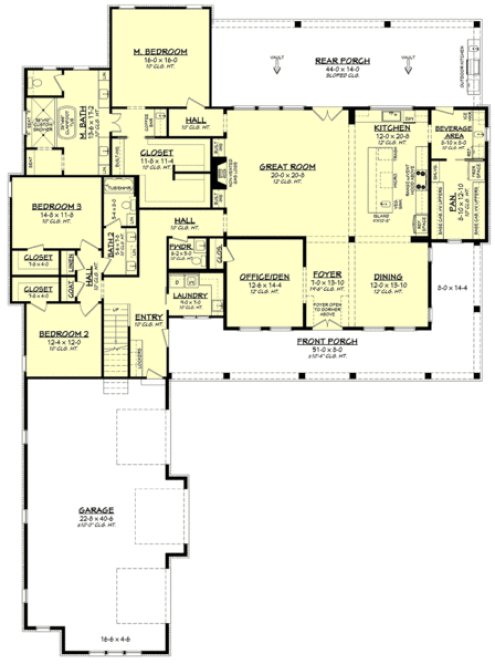
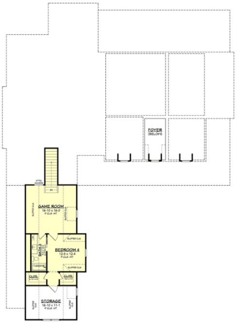
This roomy farmhouse boasts 4 bedrooms, 3.5 baths, an office, and even an upstairs game room! This house invites you in with a wraparound porch and a foyer with a 19' ceiling. Once inside the great room is open to a sizable kitchen with a separate beverage area and walk-in pantry. In the main suite, amenities is a word that comes to mind, with a bathroom fit for royalty and a gracious closet to match. All guest bedrooms are equipped with walk-in closets to provide for maximum storage. Please note, the Bonus Storage Room of 186 sq. ft. on the Second Floor is not included in the total square footage. Material list only includes materials for the base slab and crawlspace versions. Basement and 2x6 wall options NOT included. All of our CAD files are delivered in .DWG format and do not contain any type of 3D capability. Files are delivered in 2004 format so that older software versions will be able to open the files.
Specifications
Total 3858 sq ft
- Main: 3225
- Second: 633
- Third: 0
- Loft/Bonus: 0
- Basement: 0
- Garage: 1075
Rooms
- Beds: 4
- Baths: 3
- 1/2 Bath: 1
- 3/4 Bath: 0
Ceiling Height
- Main: 10'0-19'-0
- Second: 9'0
- Third:
- Loft/Bonus:
- Basement:
- Garage:
Details
- Exterior Walls: 2x4
- Garage Type: 3 Car Garage
- Width: 78'4
- Depth: 105'10
Roof
- Max Ridge Height: 30'0
- Comments: (Main Floor to Peak)
- Primary Pitch: 10/12
- Secondary Pitch: 0/12

833–493–0942







