Plan No.900532
Grand Fireplace
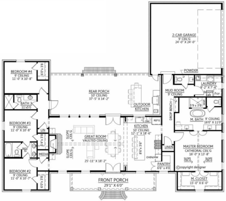
The symmetrical front elevation of this 4-bedroom French Country house plan, with a centered front porch topped by two dormers, offers a lasting first impression. The expansive rear porch is protected from the elements on three sides and includes an outdoor kitchen ideal for entertaining. French doors welcome you into a light and airy great room, with a vaulted ceiling overhead offering a sense of spaciousness. A grand fireplace anchors the left wall, and the lack of partitions between the dining area and kitchen creates the desirable, open floor plan many homeowners desire. A prep island in the center of the kitchen includes casual seating, and a nearby walk-in pantry lends additional storage space for oversized appliances. Set apart from the other family bedrooms for the utmost privacy, discover the master bedroom, complete with an elegant cathedral ceiling, walk-in closet, and standalone tub in the center of the 5-fixture bath.
Specifications
Total 2350 sq ft
- Main: 2350
- Second: 0
- Third: 0
- Loft/Bonus: 0
- Basement: 0
- Garage: 642
Rooms
- Beds: 4
- Baths: 3
- 1/2 Bath: 1
- 3/4 Bath: 0
Ceiling Height
- Main: 10'0
- Second:
- Third:
- Loft/Bonus:
- Basement:
- Garage: 9'0
Details
- Exterior Walls: 2x4
- Garage Type: 2 Car Garage
- Width: 75'11
- Depth: 65'1
Roof
- Max Ridge Height: 27'10
- Comments: (Main Floor to Peak)
- Primary Pitch: 10/12
- Secondary Pitch: 14/12

833–493–0942






















