Plan No.908052
Symmetrical Beauty
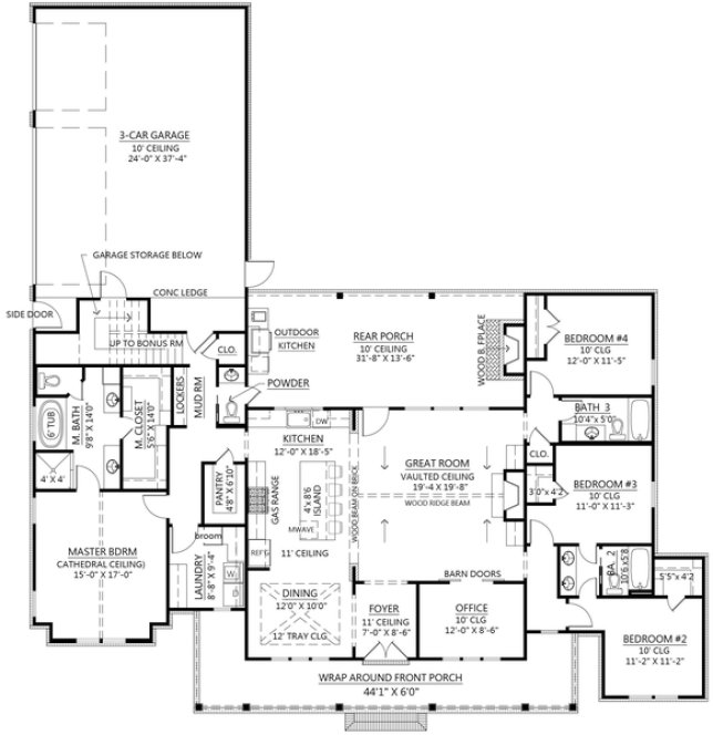
This 4 Bedroom Farmhouse Plan is symmetrical in appearance. Perfectly aligned in the center of the front porch is the beautiful set of French doors. Windows mirror the doors to the right and left sides. The front-facing gable does a great job of framing the doors as well. Finally, the house is capped off by two more front-facing gables on each side. Vertical white siding and a wraparound porch lend farmhouse appeal. Sit down on one of the white rocking chairs. Listen to the rain as it patters on the tin roof. Wave to a neighbor as they scurry past your white picket fence to escape the drizzle. This design features a Bonus Room for extra space. Please note, the Bonus Room area of 632 sq. ft. is not included in the total finished square footage.
Specifications
Total 2508 sq ft
- Main: 2508
- Second: 0
- Third: 0
- Loft/Bonus: 632
- Basement: 0
- Garage: 930
Rooms
- Beds: 4
- Baths: 3
- 1/2 Bath: 1
- 3/4 Bath: 0
Ceiling Height
- Main: 10'0
- Second:
- Third:
- Loft/Bonus:
- Basement:
- Garage:
Details
- Exterior Walls: 2x4
- Garage Type: 3 Car Garage
- Width: 77'10
- Depth: 81'7
Roof
- Max Ridge Height: 28'8
- Comments: (Main Floor to Peak)
- Primary Pitch: 9/12
- Secondary Pitch: 0/12

833–493–0942

















