Plan No.902322
Farmhouse Home Plan designed for outdoor fun
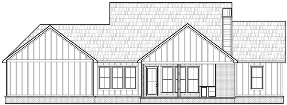
At first sight of this home, you will be impressed. The front porch measures 46'8 wide by 8' deep. Thick rustic-chic columns match the double front door. Three doghouse dormers create balance above the covered porch. Red brick looks nice against the crisp white vertical siding. The rear covered porch measures 25'3 wide by 15'4 deep. You can fit a huge table here or lots of comfortable furniture. You'll need a place to sit down because the home features an outdoor kitchen and corner fireplace. Prepare to entertain and relax here no matter what the season.
Specifications
Total 2232 sq ft
- Main: 2232
- Second: 0
- Third: 0
- Loft/Bonus: 0
- Basement: 0
- Garage: 600
Rooms
- Beds: 4
- Baths: 2
- 1/2 Bath: 1
- 3/4 Bath: 0
Ceiling Height
- Main: 10'0-16'2
- Second:
- Third:
- Loft/Bonus:
- Basement:
- Garage:
Details
- Exterior Walls: 2x4
- Garage Type: 2 Car Garage
- Width: 75'3
- Depth: 70'4
Roof
- Max Ridge Height: 25'7
- Comments: (Main Floor to Peak)
- Primary Pitch: 9/12
- Secondary Pitch: 12/12
Add to Cart
Pricing
– westhomeplanners.com
– westhomeplanners.com
– westhomeplanners.com
[Back to Search Results]

833–493–0942

