Plan No.300742
Modern Farmhouse Style Plan with Open Center Living Layout and Duel Rear Porches
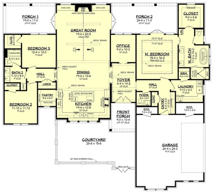
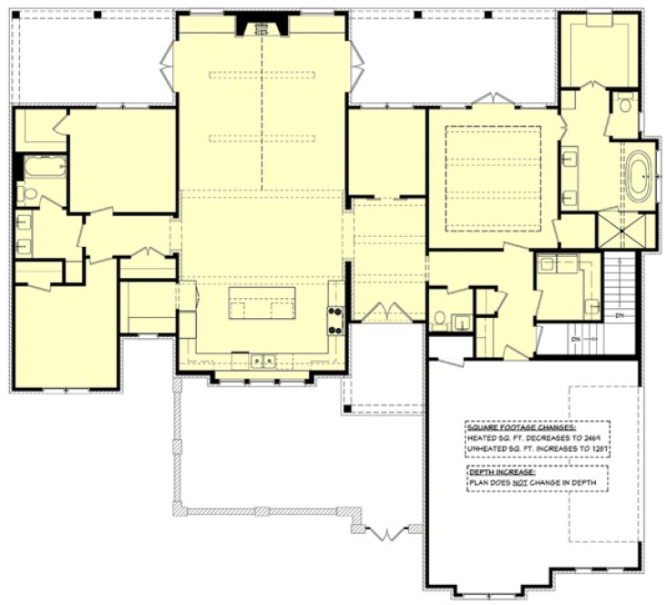
This transitional styled house plan offers 3 bedrooms, 2.5 baths and an open floor plan. The Kitchen, Dining, and Great Room are perfect spaces for a family that enjoys to entertain or spend time together. The Kitchen has an eat at bar and walk-in pantry with cabinet entry. In the Great Room you'll find built-ins next to a fireplace and vaulted ceiling with decorative wood beams and access to two separate porches. A spacious primary suite opens up onto a rear porch and is equipped with a luxurious bathroom and closet area. Other notable features include a large Entry from the Garage and home office off of the Foyer. Total Living Area may increase with Basement Foundation option.
Specifications
Total 2470 sq ft
- Main: 2470
- Second: 0
- Third: 0
- Loft/Bonus: 0
- Basement: 0
- Garage: 646
Rooms
- Beds: 3
- Baths: 2
- 1/2 Bath: 1
- 3/4 Bath: 0
Ceiling Height
- Main: 9'0
- Second:
- Third:
- Loft/Bonus:
- Basement:
- Garage:
Details
- Exterior Walls: 2x4
- Garage Type: doubleGarage
- Width: 75'0
- Depth: 67'10
Roof
- Max Ridge Height: 28'0
- Comments: (Main Floor to Peak)
- Primary Pitch: 10/12
- Secondary Pitch: 0/12
Add to Cart
Pricing
– westhomeplanners.com
– westhomeplanners.com
Opt. Basement Stairs – westhomeplanners.com
Dusk Rendering – westhomeplanners.com
Rear Rendering – westhomeplanners.com
Great Room & Dining – westhomeplanners.com
Kitchen to Dining – westhomeplanners.com
Dining to Kitchen – westhomeplanners.com
Kitchen – westhomeplanners.com
Master Bedroom – westhomeplanners.com
Master Bath – westhomeplanners.com
Master Bath – westhomeplanners.com
– westhomeplanners.com
– westhomeplanners.com
– westhomeplanners.com
FRONT Elevation – westhomeplanners.com
[Back to Search Results]

833–493–0942














