Plan No.431132
Country Farmhouse
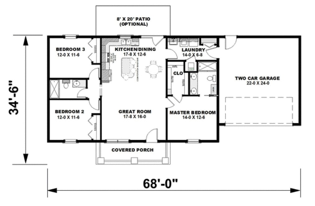
Split bedroom layout for privacy and NO wasted space! Open kitchen/dining and great room – perfect for entertaining. Kitchen has a large island with a counter high snack bar, French doors lead out onto the optional patio. The Master bedroom is large and contains a private bath and walk-in closet. The master bath has dual sinks, tub/shower combo and plenty of storage. Bedrooms 2 and 3 share a bath. The laundry room has lots of storage and a laundry sink for easy cleanup.
Specifications
Total 1311 sq ft
- Main: 1311
- Second: 0
- Third: 0
- Loft/Bonus: 0
- Basement: 0
- Garage: 528
Rooms
- Beds: 3
- Baths: 2
- 1/2 Bath: 0
- 3/4 Bath: 0
Ceiling Height
- Main: 9'0
- Second:
- Third:
- Loft/Bonus:
- Basement:
- Garage:
Details
- Exterior Walls: 2x6
- Garage Type: 2 Car Garage
- Width: 68'0
- Depth: 34'6
Roof
- Max Ridge Height: 20'0
- Comments: (Main Floor to Peak)
- Primary Pitch: 8/12
- Secondary Pitch: 0/12
Add to Cart
Pricing
– westhomeplanners.com
– westhomeplanners.com
Left & Rear – westhomeplanners.com
Dusk Rendering – westhomeplanners.com
Great Room – westhomeplanners.com
– westhomeplanners.com
[Back to Search Results]

833–493–0942




