Plan No.308562
Charming Modern Style Farmhouse Plan with 4 Beds and Well-Placed Laundry
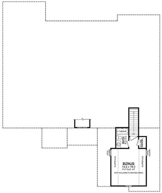
This charming modern farmhouse offers 4 bedrooms and 3.5 baths including an optional bonus room. The large great room is open to the dining and kitchen that’s equipped with an eat at bar and walk-in pantry. The main suite is equipped with a spacious bathroom with separate vanities and toilet room. On the guest side of the house the 3 bedrooms are designed to allow for a mother-in-law suite with a private bathroom. Total Living Area may increase with Basement Foundation option. Materials list only includes materials for the base slab and crawlspace versions. Basement and 2x6 wall options NOT included.
Specifications
Total 2658 sq ft
- Main: 2658
- Second: 0
- Third: 0
- Loft/Bonus: 315
- Basement: 0
- Garage: 633
Rooms
- Beds: 4
- Baths: 3
- 1/2 Bath: 1
- 3/4 Bath: 0
Ceiling Height
- Main: 9'0-10'0
- Second:
- Third:
- Loft/Bonus: 9'0
- Basement:
- Garage:
Details
- Exterior Walls: 2x4
- Garage Type: doubleGarage
- Width: 64'2
- Depth: 77'4
Roof
- Max Ridge Height: 27'0
- Comments: (Main Floor to Peak)
- Primary Pitch: 8/12
- Secondary Pitch: 0/12
Add to Cart
Pricing
– westhomeplanners.com
– westhomeplanners.com
– westhomeplanners.com
Opt. Basement Stairs – westhomeplanners.com
Dusk Rendering – westhomeplanners.com
– westhomeplanners.com
– westhomeplanners.com
– westhomeplanners.com
FRONT Elevation – westhomeplanners.com
[Back to Search Results]

833–493–0942







