Plan No.900322
Modern Farmhouse Plan with Home Office, Open Floor Plan and Bonus Room over Garage
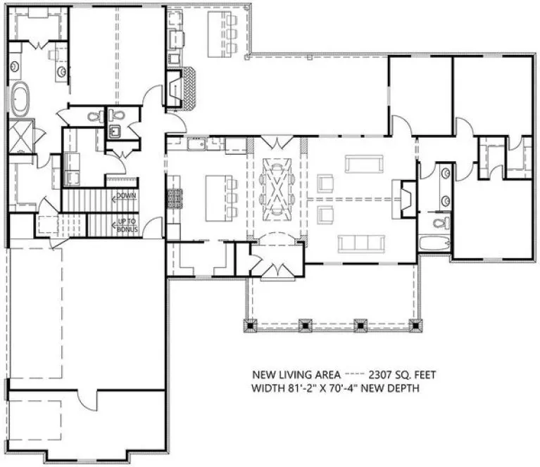
This Modern Farmhouse Plan has 2,230 square feet of living space, 3 bedrooms, and 2.5 bathrooms. Anyone who loves farmhouse style will not be disappointed because the home has two large covered porches. When it’s time to expand, the upper level bonus room will add recreation space for your family. With open living space and functional rooms, your family will feel right at home.
Specifications
Total 2230 sq ft
- Main: 2230
- Second: 0
- Third: 0
- Loft/Bonus: 414
- Basement: 0
- Garage: 825
Rooms
- Beds: 3
- Baths: 2
- 1/2 Bath: 1
- 3/4 Bath: 0
Ceiling Height
- Main: 10'0
- Second:
- Third:
- Loft/Bonus:
- Basement:
- Garage:
Details
- Exterior Walls: 2x4
- Garage Type: tripleGarage
- Width: 81'2
- Depth: 66'6
Roof
- Max Ridge Height: 24'8
- Comments: (Main Floor to Peak)
- Primary Pitch: 10/12
- Secondary Pitch: 0/12
Add to Cart
Pricing
– westhomeplanners.com
– westhomeplanners.com
– westhomeplanners.com
Optional Basement Stairs – westhomeplanners.com
[Back to Search Results]

833–493–0942


