Plan No.715352
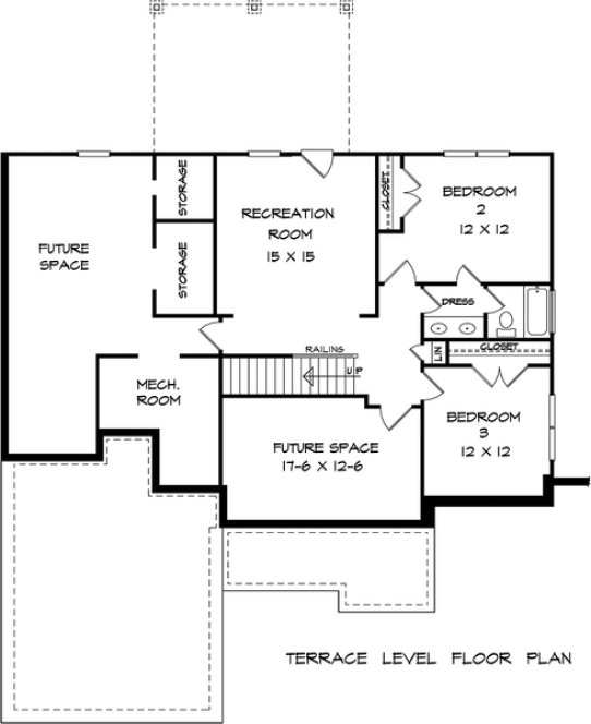
Walkout Basement Offers Many Options
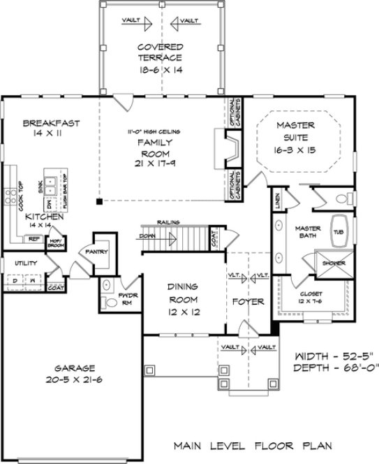
There is plenty of space for future development in the basement, it could include a mortgage helper or in-law suite. The total basement area is 1714 sq. ft., 821 sq. ft. of which is shown as finished. The Designer does not allow modifications to be made to the PDF. Please order CAD file for modifications.
Specifications
Total 2535 sq ft
- Main: 1714
- Second: 0
- Third: 0
- Loft/Bonus: 0
- Basement: 821
- Garage: 512
Rooms
- Beds: 3
- Baths: 2
- 1/2 Bath: 1
- 3/4 Bath: 0
Ceiling Height
- Main: 9'0-11'0
- Second:
- Third:
- Loft/Bonus:
- Basement:
- Garage:
Details
- Exterior Walls: 2x4
- Garage Type: doubleGarage
- Width: 52'5
- Depth: 68'0
Roof
- Max Ridge Height: 25'3
- Comments: (Main Floor to Peak)
- Primary Pitch: 9/12
- Secondary Pitch: 0/12
Add to Cart
Pricing
– westhomeplanners.com
– westhomeplanners.com
WALKOUT Basement – westhomeplanners.com
– westhomeplanners.com
– westhomeplanners.com
– westhomeplanners.com
[Back to Search Results]

833–493–0942




