Plan No.304322
Traditional Style Farmhouse Plan
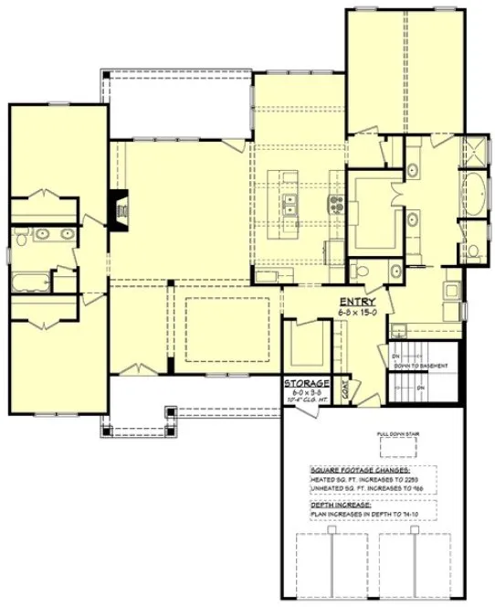
This beautiful traditional style home offers 3 large bedrooms, a formal dining and breakfast space, 2 full baths, a powder bath, large open living space, and large rear porch. The kitchen features a large island with an oversized pantry. The main suite offers vaulted ceilings, a private bath with dual sinks and knee space, and a large walk-in closet with built-in dresser. With all the amenities and many more, this plan is sure to be perfect for you. Total Living Area may increase with Basement Foundation option.
Specifications
Total 2234 sq ft
- Main: 2234
- Second: 0
- Third: 0
- Loft/Bonus: 0
- Basement: 0
- Garage: 572
Rooms
- Beds: 3
- Baths: 2
- 1/2 Bath: 1
- 3/4 Bath: 0
Ceiling Height
- Main: 9'0
- Second:
- Third:
- Loft/Bonus:
- Basement:
- Garage:
Details
- Exterior Walls: 2x4
- Garage Type: doubleGarage
- Width: 61'0
- Depth: 70'10
Roof
- Max Ridge Height: 24'0
- Comments: (Main Floor to Peak)
- Primary Pitch: 8/12
- Secondary Pitch: 0/12
Add to Cart
Pricing
– westhomeplanners.com
– westhomeplanners.com
Optional Basement Stairs – westhomeplanners.com
– westhomeplanners.com
– westhomeplanners.com
– westhomeplanners.com
FRONT Elevation – westhomeplanners.com
[Back to Search Results]

833–493–0942





