Plan No.581064
Compact Design with Full Sized Amenities
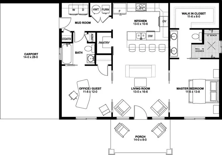
This compact plan features a fully equipped kitchen with a walk-in pantry and peninsula that comfortably seats up to four. Nine foot ceilings and pocket doors throughout the home create a spacious and open feeling. The pocket doors leading into the master suite and guest room can either be closed for privacy or can provide a large 5' wide opening. The modern walk-in shower in the master suite provides both easy access and eliminates the maintenance required by glass doors. Measuring over 6' from end to end, the shower accommodates dual shower heads. The master suite also includes a dual vanity and a large walk-in closet. This design also features a covered front porch, an oversized single carport, a mudroom/laundry room and a full bath for guests. Also available with 2x4 exterior walls.
Specifications
Total 1064 sq ft
- Main: 1064
- Second: 0
- Third: 0
- Loft/Bonus: 0
- Basement: 0
- Garage: 392
Rooms
- Beds: 2
- Baths: 2
- 1/2 Bath: 0
- 3/4 Bath: 0
Ceiling Height
- Main: 9'-0
- Second:
- Third:
- Loft/Bonus:
- Basement:
- Garage:
Details
- Exterior Walls: 2x6
- Garage Type: singleCarport
- Width: 52'-0
- Depth: 36'-0
Roof
- Max Ridge Height: 20'-1
- Comments: ((From Grade))
- Primary Pitch: 8/12
- Secondary Pitch: 8/12

833–493–0942

















