Plan No.343241
A Classy, Contemporary A-frame
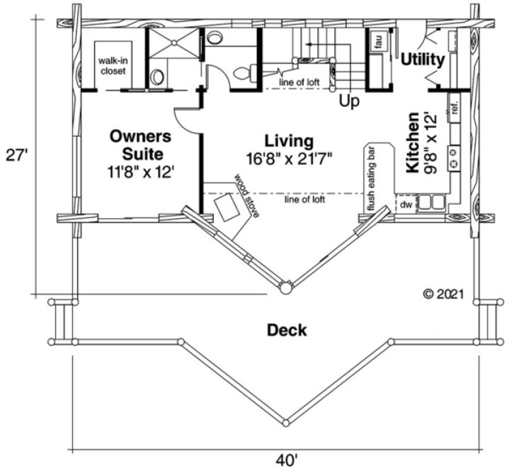
Richly glassed, this A-frame log cabin home plan is a vacation retreat with a bright, partially two-story living room. The owners' suite, kitchen, and utilities fill the main floor wings. Above, a wide loft overlooks the great room and shares its view. Bathroom, bunk room, and extensive storage spaces are also upstairs. Also available with 2x6 framed exterior walls for an additional fee of $175.00, phone in order for this option.
Specifications
Total 1216 sq ft
- Main: 863
- Second: 353
- Third: 0
- Loft/Bonus: 0
- Basement: 863
- Garage: 0
Rooms
- Beds: 2
- Baths: 2
- 1/2 Bath: 0
- 3/4 Bath: 0
Ceiling Height
- Main: 8'0
- Second:
- Third:
- Loft/Bonus:
- Basement:
- Garage:
Details
- Exterior Walls: Log
- Garage Type: none
- Width: 40'0
- Depth: 27'0
Roof
- Max Ridge Height: 27'8
- Comments: (Main Floor to Peak)
- Primary Pitch: 12/12
- Secondary Pitch: 0/12
Add to Cart
Pricing
– westhomeplanners.com
– westhomeplanners.com
– westhomeplanners.com
– westhomeplanners.com
– westhomeplanners.com
– westhomeplanners.com
– westhomeplanners.com
– westhomeplanners.com
– westhomeplanners.com
– westhomeplanners.com
– westhomeplanners.com
[Back to Search Results]

833–493–0942









