Plan No.203078
Spacious Open Planning
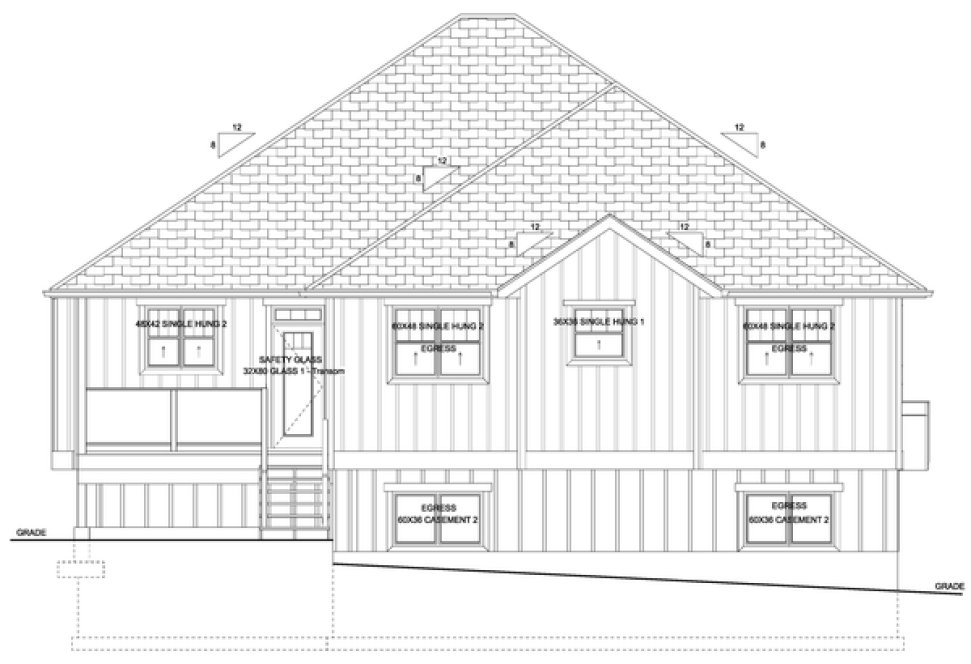
This design is loaded with many special features and the exterior is finished in the popular Modern Farmhouse style. A large and roomy Ensuite Bath and walk-in closet is the highlight of the Master suite. The family living area has great sight lines that enhance this already big space and flows nicely into the outdoors and the Covered Sundeck. Add in your basement living area a you have a Total of 2839 square feet.
Specifications
Total 1699 sq ft
- Main: 1699
- Second: 0
- Third: 0
- Loft/Bonus: 0
- Basement: 1140
- Garage: 768
Rooms
- Beds: 5
- Baths: 3
- 1/2 Bath: 0
- 3/4 Bath: 0
Ceiling Height
- Main: 9'0
- Second:
- Third:
- Loft/Bonus:
- Basement: 9'0
- Garage: 9'4
Details
- Exterior Walls: 2x6
- Garage Type: tripleGarage
- Width: 45'0
- Depth: 48'0
Roof
- Max Ridge Height: 28'9
- Comments: (Main Floor to Peak)
- Primary Pitch: 8/12
- Secondary Pitch: 0/12
Add to Cart
Pricing
– westhomeplanners.com
– westhomeplanners.com
– westhomeplanners.com
– westhomeplanners.com
[Back to Search Results]

833–493–0942


