Plan No.535602
Jack & Jill Bath
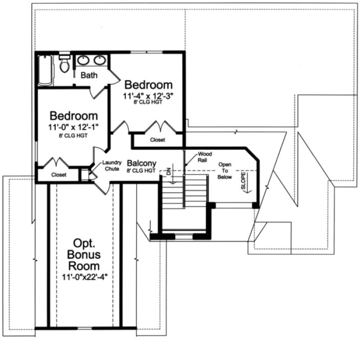
An open concept Great Room enjoys a corner gas fireplace and rear yard view, The Dining Area offers access to the rear yard and an 8 foot island with seating defines the Kitchen. A Study offers quiet space for flexible use and the Master Suite showcases a stand-alone tub, shower, double bowl vanity and large walk-in closet. Split stairs lead to a second floor balcony that overlooks the Foyer and 2 additional bedrooms that share a Jack & Jill bath. A large attic space above the garage provides storage. A basement foundation with a walk-out to the side yard is included with this home plan.
Specifications
Total 2065 sq ft
- Main: 1570
- Second: 495
- Third: 0
- Loft/Bonus: 258
- Basement: 1570
- Garage: 492
Rooms
- Beds: 3
- Baths: 2
- 1/2 Bath: 1
- 3/4 Bath: 0
Ceiling Height
- Main: 8'0-10'0
- Second:
- Third:
- Loft/Bonus:
- Basement:
- Garage:
Details
- Exterior Walls: 2x4
- Garage Type: doubleGarage
- Width: 53'6
- Depth: 49'10
Roof
- Max Ridge Height: 27'2
- Comments: (Main Floor to Peak)
- Primary Pitch: 8/12
- Secondary Pitch: 12/12
Add to Cart
Pricing
– westhomeplanners.com
– westhomeplanners.com
– westhomeplanners.com
– westhomeplanners.com
– westhomeplanners.com
– westhomeplanners.com
– westhomeplanners.com
[Back to Search Results]

833–493–0942





