Plan No.310452
Cool Country Living
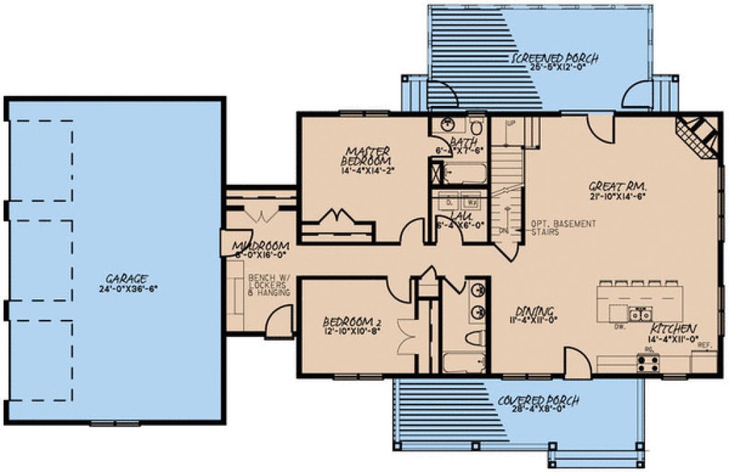
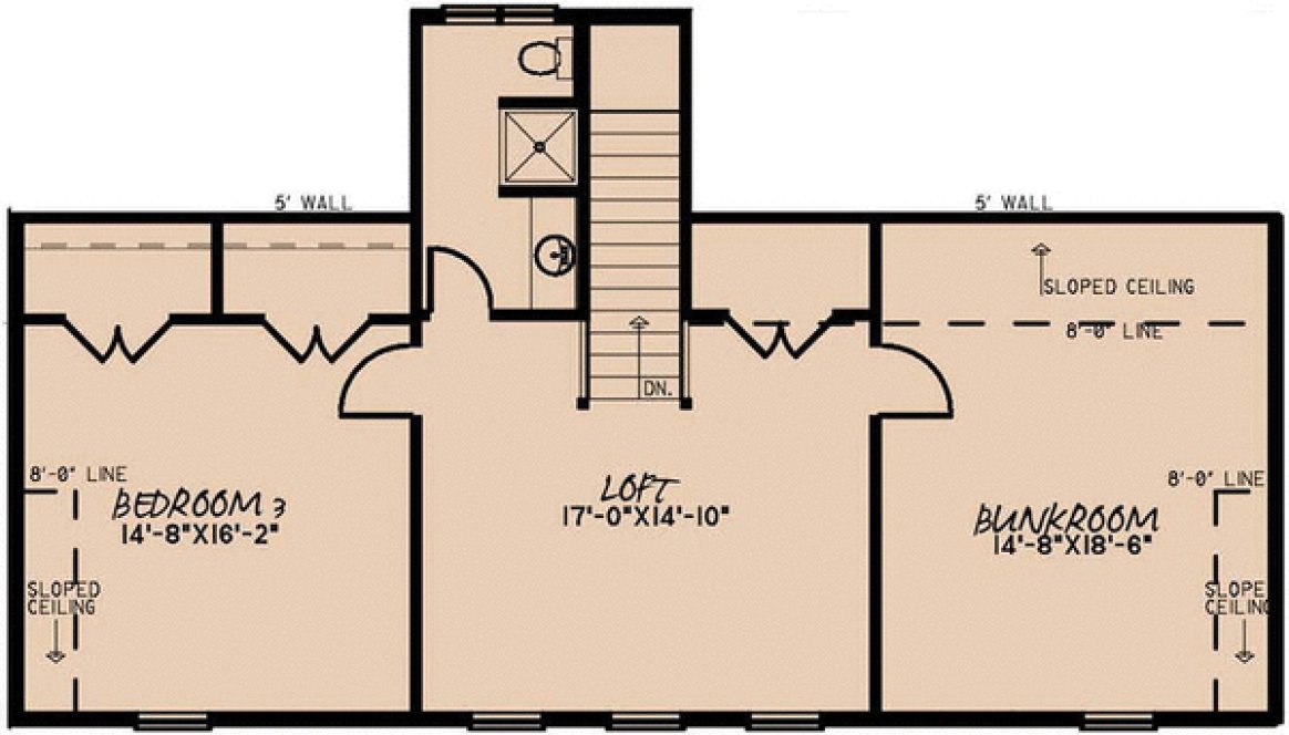
Country living got a little bit cooler! This design adds clean lines and low roofs to the traditional country rustic elements. This 3 bedroom home plan provides 3 full baths in an open 2,540 square foot layout. A large rear screened sun porch gives your evening protection from menacing bugs and scorching sun. The incredibly spacious open design features an angled corner fireplace in the Great Room for decadent relaxation and a bar island in the Kitchen to seat your entire friends list! The Main level Master Suite holds a private en suite bathroom, while Bedroom 2 and Bedroom 3 are given additional privacy on the Upper level! The 3-car garage leads into a spacious mudroom with a built-in bench seat and hanging space to make the morning exits a breeze.
Specifications
Total 2540 sq ft
- Main: 1585
- Second: 955
- Third: 0
- Loft/Bonus: 0
- Basement: 0
- Garage: 917
Rooms
- Beds: 4
- Baths: 2
- 1/2 Bath: 0
- 3/4 Bath: 1
Ceiling Height
- Main: 9'0
- Second: 8'0
- Third:
- Loft/Bonus:
- Basement:
- Garage:
Details
- Exterior Walls: 2x6
- Garage Type: tripleGarage
- Width: 81'0
- Depth: 50'3
Roof
- Max Ridge Height: 22'0
- Comments: (Main Floor to Peak)
- Primary Pitch: 10/12
- Secondary Pitch: 4/12

833–493–0942




