Plan No.308441
Please note, the Bonus Room is not included in the Total Living Area. The Total Living Area increases with Basement Foundation option.
Specifications
Total 1448 sq ft
- Main: 1448
- Second: 0
- Third: 0
- Loft/Bonus: 468
- Basement: 0
- Garage: 440
Rooms
- Beds: 2
- Baths: 1
- 1/2 Bath: 0
- 3/4 Bath: 1
Ceiling Height
- Main: 10'0
- Second:
- Third:
- Loft/Bonus: 8'0
- Basement:
- Garage:
Details
- Exterior Walls: 2x4
- Garage Type: doubleGarage
- Width: 69'0
- Depth: 48'6
Roof
- Max Ridge Height: 27'0
- Comments: (Main Floor to Peak)
- Primary Pitch: 8/12
- Secondary Pitch: 4/12
Add to Cart
Pricing
– westhomeplanners.com
– westhomeplanners.com
– westhomeplanners.com
Dusk Rendering – westhomeplanners.com
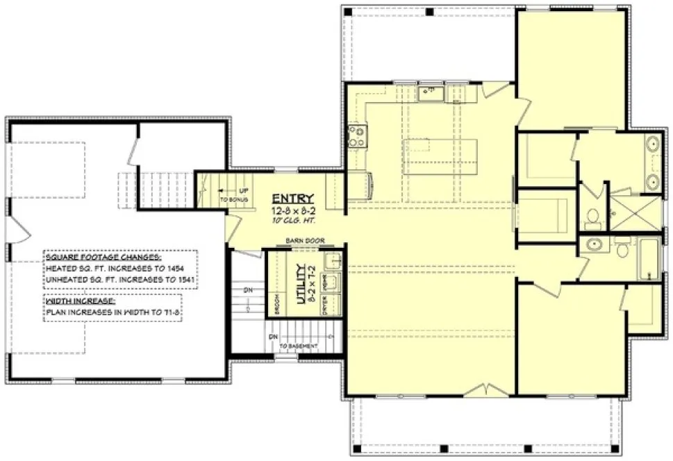
Optional Basement Stairs – westhomeplanners.com
– westhomeplanners.com
– westhomeplanners.com
FRONT Elevation – westhomeplanners.com
[Back to Search Results]

833–493–0942






