Plan No.156482
Creative Blend of Angles
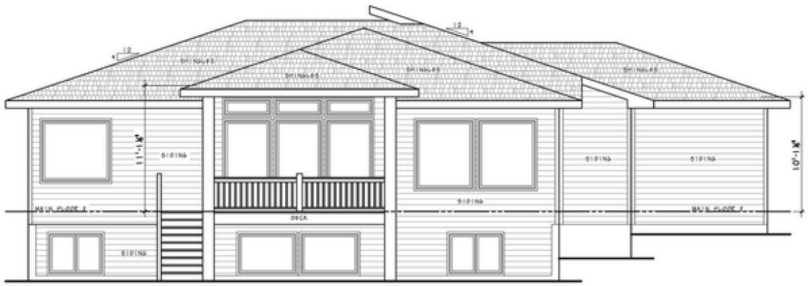
Stunning in its creative blend of angles, siding materials and horizontal windows, this home makes a statement! Equally impressive inside, the entertaining core is spacious and inviting, particularly with all of those windows out the back. The kitchen is a delight, with its double island acting as the hub of activity. The garage is extra deep for storage or a workbench, and the home’s rear foyer with bench and drop zone is equally accommodating. Small appliances stay plugged in and ready to use in the appliance center, yet don’t clutter kitchen countertops. And that huge pantry means you won’t run out of storage space! The Walkout Basement is 1804 sq. ft., 1042 sq. ft. of which is finished, the total finished area of both floors is 2846 sq. ft.
Specifications
Total 2846 sq ft
- Main: 1804
- Second: 0
- Third: 0
- Loft/Bonus: 0
- Basement: 1042
- Garage: 814
Rooms
- Beds: 3
- Baths: 1
- 1/2 Bath: 1
- 3/4 Bath: 1
Ceiling Height
- Main: 10'0-11'0
- Second:
- Third:
- Loft/Bonus:
- Basement: 9'0
- Garage:
Details
- Exterior Walls: 2x4
- Garage Type: tripleGarage
- Width: 65'0
- Depth: 65'0
Roof
- Max Ridge Height: 20'2
- Comments: (Main Floor to Peak)
- Primary Pitch: 5/12
- Secondary Pitch: 5/12

833–493–0942




