Plan No.539201
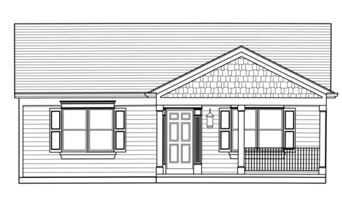
Charming Cottage
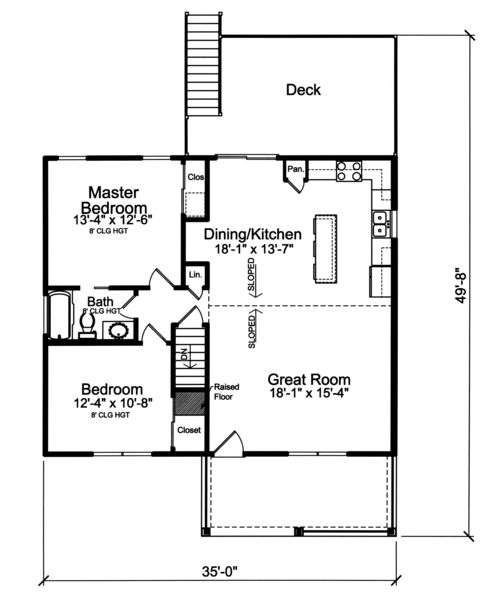
A charming home with siding and shakes exterior, a covered front porch and open floor plan offers a great option for a starter or empty nester home, lakefront cabin or vacation cottage. Additional square footage can be added by accessing the lower level basement, included with this plan package. A rear deck provides outdoor enjoyment with a view offered by your chosen location.
Specifications
Total 1029 sq ft
- Main: 1029
- Second: 0
- Third: 0
- Loft/Bonus: 0
- Basement: 1029
- Garage: 0
Rooms
- Beds: 2
- Baths: 1
- 1/2 Bath: 0
- 3/4 Bath: 0
Ceiling Height
- Main: 8'1-13'0
- Second:
- Third:
- Loft/Bonus:
- Basement:
- Garage:
Details
- Exterior Walls: 2x4
- Garage Type: none
- Width: 35'0
- Depth: 49'8
Roof
- Max Ridge Height: 18'4
- Comments: (Main Floor to Peak)
- Primary Pitch: 6/12
- Secondary Pitch: 6/12
Add to Cart
Pricing
– westhomeplanners.com
– westhomeplanners.com
– westhomeplanners.com
– westhomeplanners.com
– westhomeplanners.com
– westhomeplanners.com
FRONT Elevation – westhomeplanners.com
[Back to Search Results]

833–493–0942





