Plan No.596261
Economical 3 Bedroom Modern Farmhouse Plan with Side Entry Garage
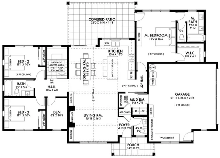
This economical modern farmhouse plan boasts 3 spacious bedroom and 2.5 baths in an efficient package with no wasted space. The open concept living area opens up to large covered patios with an 8 foot sliding patio door and huge kitchen window over a country sink. The master suite is private and tucked away while maintaining access to the covered patio. And the oversize double side entry garage provides the extra space needed for a small workshop.
Specifications
Total 1626 sq ft
- Main: 1626
- Second: 0
- Third: 0
- Loft/Bonus: 0
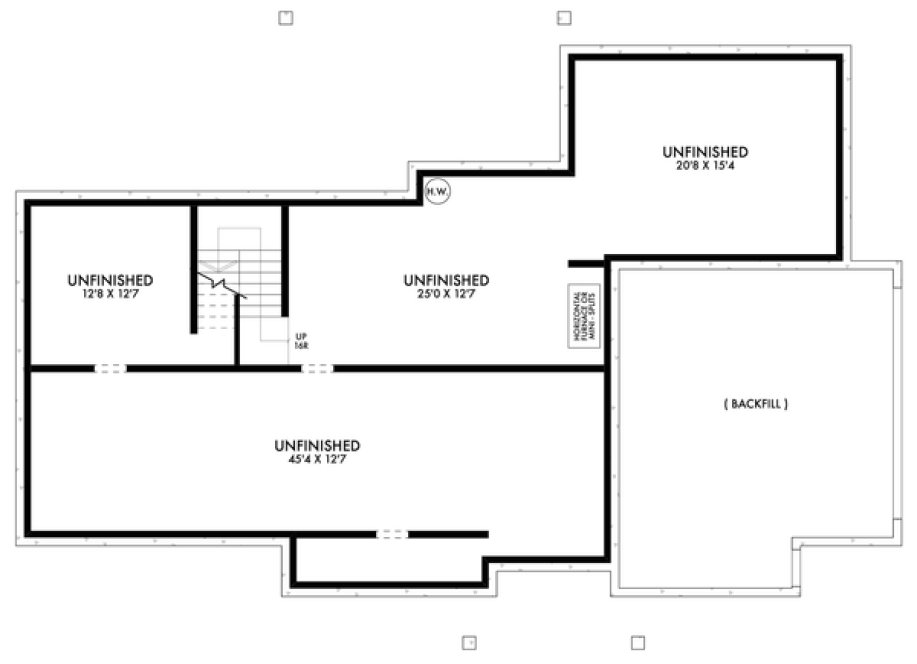
- Basement: 0
- Garage: 554
Rooms
- Beds: 3
- Baths: 2
- 1/2 Bath: 1
- 3/4 Bath: 0
Ceiling Height
- Main: 9'0-13'1
- Second:
- Third:
- Loft/Bonus:
- Basement:
- Garage:
Details
- Exterior Walls: 2x6
- Garage Type: 2 Car Garage
- Width: 63'0
- Depth: 50'0
Roof
- Max Ridge Height: 19'5
- Comments: (Main Floor to Peak)
- Primary Pitch: 8/12
- Secondary Pitch: 4/12
Add to Cart
Pricing
– westhomeplanners.com
– westhomeplanners.com
– westhomeplanners.com
Optional Basement Stairs – westhomeplanners.com
Living Area – westhomeplanners.com
Winter Rendering – westhomeplanners.com
Rear Night Rendering – westhomeplanners.com
– westhomeplanners.com
– westhomeplanners.com
– westhomeplanners.com
FRONT Elevation – westhomeplanners.com
[Back to Search Results]

833–493–0942









