Plan No.915442
Building restrictions apply in Lee and Collier County, Florida. Please contact us for details.
Specifications
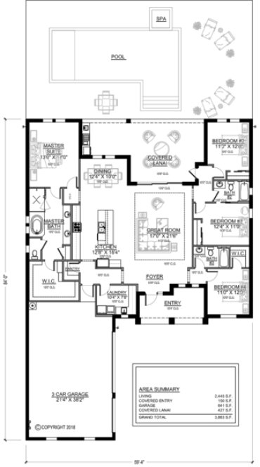
Total 2445 sq ft
- Main: 2445
- Second: 0
- Third: 0
- Loft/Bonus: 0
- Basement: 0
- Garage: 841
Rooms
- Beds: 4
- Baths: 3
- 1/2 Bath: 0
- 3/4 Bath: 0
Ceiling Height
- Main: 10'0-12'4
- Second:
- Third:
- Loft/Bonus:
- Basement:
- Garage:
Details
- Exterior Walls: Block
- Garage Type: tripleGarage
- Width: 59'4
- Depth: 84'0
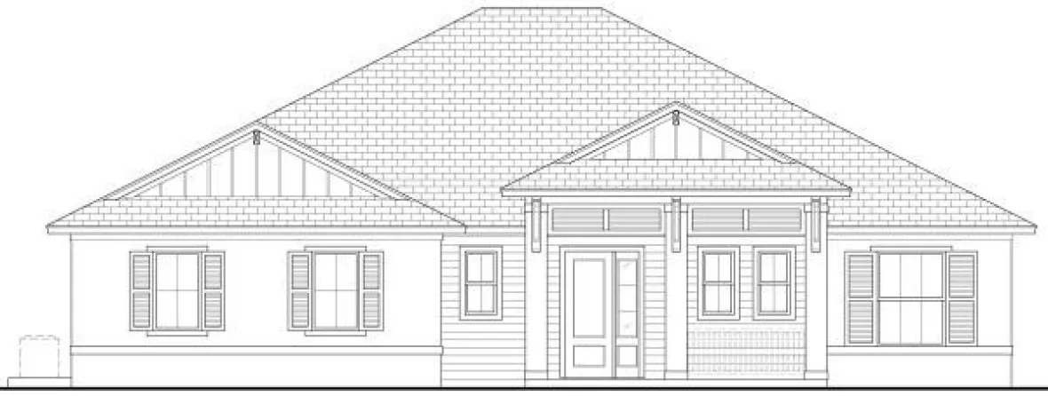
Roof
- Max Ridge Height: 23'5
- Comments: (Main Floor to Peak)
- Primary Pitch: 6/12
- Secondary Pitch: 0/12
Add to Cart
Pricing
– westhomeplanners.com
– westhomeplanners.com
– westhomeplanners.com
– westhomeplanners.com
– westhomeplanners.com
FRONT Elevation – westhomeplanners.com
[Back to Search Results]

833–493–0942




