Plan No.590061
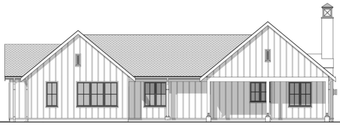
Timeless Modern Farmhouse Plan with Side Entry Garage
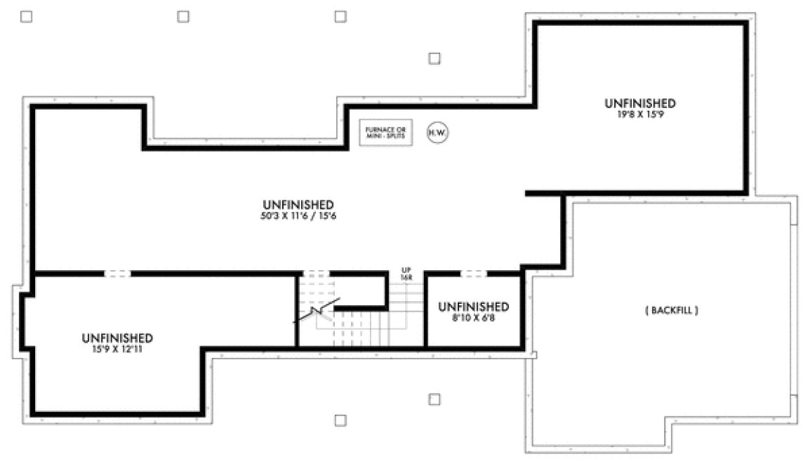
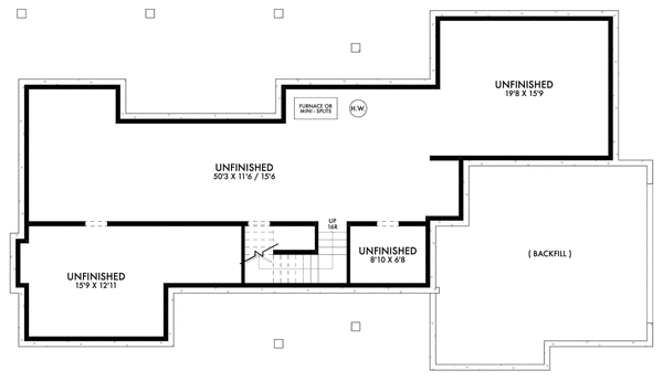
This timeless modern farmhouse plan has been masterfully designed with authentic farmhouse details and an exceedingly functional 2 bed, 2 bath floor plan. The open concept living area makes way to large covered patios. A very private master suite is accompanied by a generous second bedroom. And the oversize double side entry garage grants extra space for a small workshop. Imagine living an uncluttered life in a home that will stand the test of time. Please note, the overall dimensions of the BASEMENT VERSION is 75'0 x 42'0 and the total area is 1684 sq. ft. The building height increases to 21'11.
Specifications
Total 1600 sq ft
- Main: 1600
- Second: 0
- Third: 0
- Loft/Bonus: 0
- Basement: 1535
- Garage: 555
Rooms
- Beds: 2
- Baths: 2
- 1/2 Bath: 0
- 3/4 Bath: 0
Ceiling Height
- Main: 9'0-13'3
- Second:
- Third:
- Loft/Bonus:
- Basement:
- Garage:
Details
- Exterior Walls: 2x6
- Garage Type: 2 Car Garage
- Width: 71'0
- Depth: 42'0
Roof
- Max Ridge Height: 21'3
- Comments: (Main Floor to Peak)
- Primary Pitch: 10/12
- Secondary Pitch: 7/12
Add to Cart
Pricing
– westhomeplanners.com
– westhomeplanners.com
– westhomeplanners.com
Optional Basement Stairs – westhomeplanners.com
Living Area – westhomeplanners.com
Rear Night Rendering – westhomeplanners.com
Winter Rendering – westhomeplanners.com
– westhomeplanners.com
– westhomeplanners.com
– westhomeplanners.com
FRONT Elevation – westhomeplanners.com
[Back to Search Results]

833–493–0942









