Plan No.590051
Authentic Modern Farmhouse Plan with Side Entry Garage
This authentic modern farmhouse plan has an idyllic appeal that’s difficult to find. Combining classic farmhouse details with large open concept living area, oversized kitchen, 2 generous bedrooms, 2 full baths and double side entry garage, this plan is exceedingly comfortable. This design has been skillfully crafted by one of our most popular designers and it doesn’t disappoint. Purchase this plan and come home to uncluttered idyllic living. Please note, the overall dimensions of the BASEMENT VERSION is 54'0 x 52'0 and the total area is 1553 sq. ft.
Specifications
Total 1500 sq ft
- Main: 1500
- Second: 0
- Third: 0
- Loft/Bonus: 0
- Basement: 1421
- Garage: 602
Rooms
- Beds: 2
- Baths: 2
- 1/2 Bath: 0
- 3/4 Bath: 0
Ceiling Height
- Main: 9'0-14'0
- Second:
- Third:
- Loft/Bonus:
- Basement:
- Garage:
Details
- Exterior Walls: 2x6
- Garage Type:
- Width: 54'0
- Depth: 48'6
Roof
- Max Ridge Height: 19'11
- Comments: (Main Floor to Peak)
- Primary Pitch: 7/12
- Secondary Pitch: 10/12
Add to Cart
Pricing
Full Rendering – westhomeplanners.com
MAIN Plan – westhomeplanners.com
BASEMENT Plan – westhomeplanners.com
Optional Basement Stairs – westhomeplanners.com
Winter Scene – westhomeplanners.com
Rear Rendering at Dusk – westhomeplanners.com
Kitchen / Dining – westhomeplanners.com
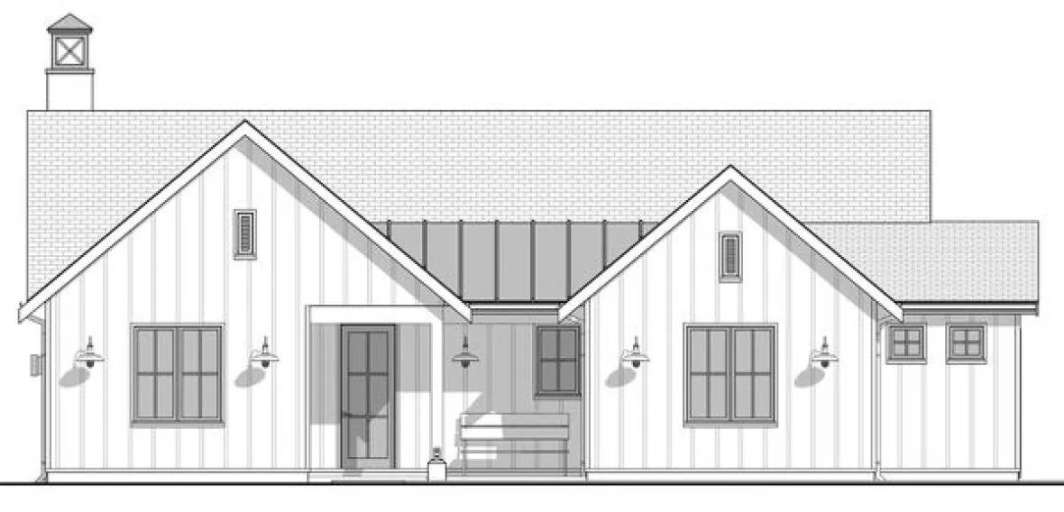
REAR Elevation – westhomeplanners.com
LEFT Elevation – westhomeplanners.com
RIGHT Elevation – westhomeplanners.com
FRONT Elevation – westhomeplanners.com
[Back to Search Results]

833–493–0942









