Plan No.881005
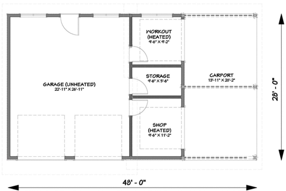
Modern Garage with extra rooms for hobbies, crafts, fitness … plus Carport
Specifications
Total 1344 sq ft
- Main: 1344
- Second: 0
- Third: 0
- Loft/Bonus: 0
- Basement: 0
- Garage: 952
Rooms
- Beds: 0
- Baths: 0
- 1/2 Bath: 0
- 3/4 Bath: 0
Ceiling Height
- Main: 9'0
- Second:
- Third:
- Loft/Bonus:
- Basement:
- Garage:
Details
- Exterior Walls: 2x6
- Garage Type:
- Width: 48'0
- Depth: 28'0
Roof
- Max Ridge Height: 13'9
- Comments: (Main Floor to Peak)
- Primary Pitch: 6/12
- Secondary Pitch: 0/12
Add to Cart
Pricing
– westhomeplanners.com
– westhomeplanners.com
– westhomeplanners.com
– westhomeplanners.com
FRONT Elevation – westhomeplanners.com
[Back to Search Results]

833–493–0942



