Plan No.881003
Nice sized Garage with higher ceiling and large Carport for all the other stuff.
Specifications
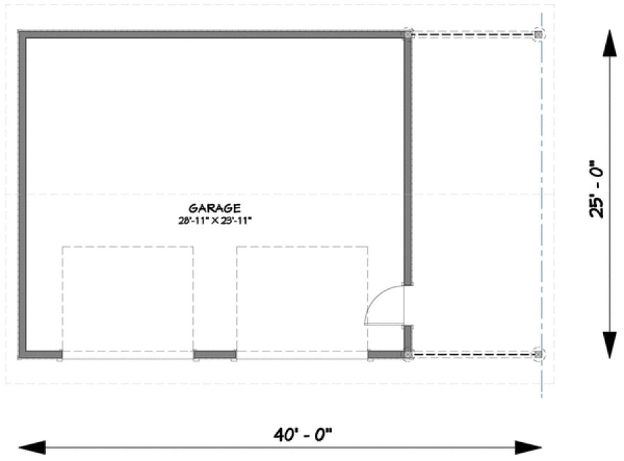
Total 1000 sq ft
- Main: 1000
- Second: 0
- Third: 0
- Loft/Bonus: 0
- Basement: 0
- Garage: 750
Rooms
- Beds: 0
- Baths: 0
- 1/2 Bath: 0
- 3/4 Bath: 0
Ceiling Height
- Main: 10'0
- Second:
- Third:
- Loft/Bonus:
- Basement:
- Garage:
Details
- Exterior Walls: 2x6
- Garage Type:
- Width: 40'0
- Depth: 25'0
Roof
- Max Ridge Height: 16'9
- Comments: (Main Floor to Peak)
- Primary Pitch: 5/12
- Secondary Pitch: 0/12
Add to Cart
Pricing
– westhomeplanners.com
– westhomeplanners.com
– westhomeplanners.com
– westhomeplanners.com
– westhomeplanners.com
FRONT Elevation – westhomeplanners.com
[Back to Search Results]

833–493–0942




