Plan No.900922
Farmhouse Plan With Outdoor Kitchen
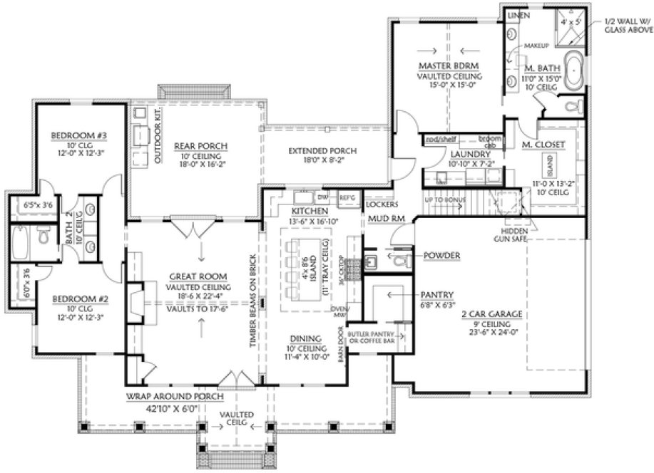
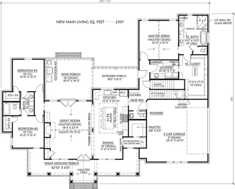
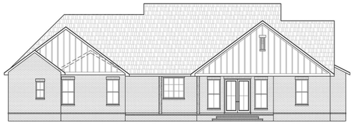
This traditional house plan has excellent curb appeal for three reasons. Firstly, the Craftsman style front porch attracts attention. Wooden columns have brick bases, and the stain color matches the front door. Homeowners love the country appeal of the wraparound porch as well. The porch measures 42'10 wide by 6' deep. Secondly, the home features a combination of exterior materials. Red brick complements vertical white siding. Gray shingles complement the dark gray tin roof of the porch. Thirdly, subtle details add charm. Board and batten shutters complement the window boxes. Fill them with colorful flowers to really make an impact on curb appeal. Please note, the Bonus Room area of 339 sq. ft. is not included in the total square footage. Total Living Area increases with Basement Foundation option to 2397 sq. ft.
Specifications
Total 2290 sq ft
- Main: 2290
- Second: 0
- Third: 0
- Loft/Bonus: 339
- Basement: 0
- Garage: 632
Rooms
- Beds: 3
- Baths: 2
- 1/2 Bath: 1
- 3/4 Bath: 0
Ceiling Height
- Main: 10'0
- Second:
- Third:
- Loft/Bonus: 9'0
- Basement:
- Garage:
Details
- Exterior Walls: 2x4
- Garage Type: doubleGarage
- Width: 80'10
- Depth: 62'2
Roof
- Max Ridge Height: 26'3
- Comments: (Main Floor to Peak)
- Primary Pitch: 9/12
- Secondary Pitch: 0/12

833–493–0942













